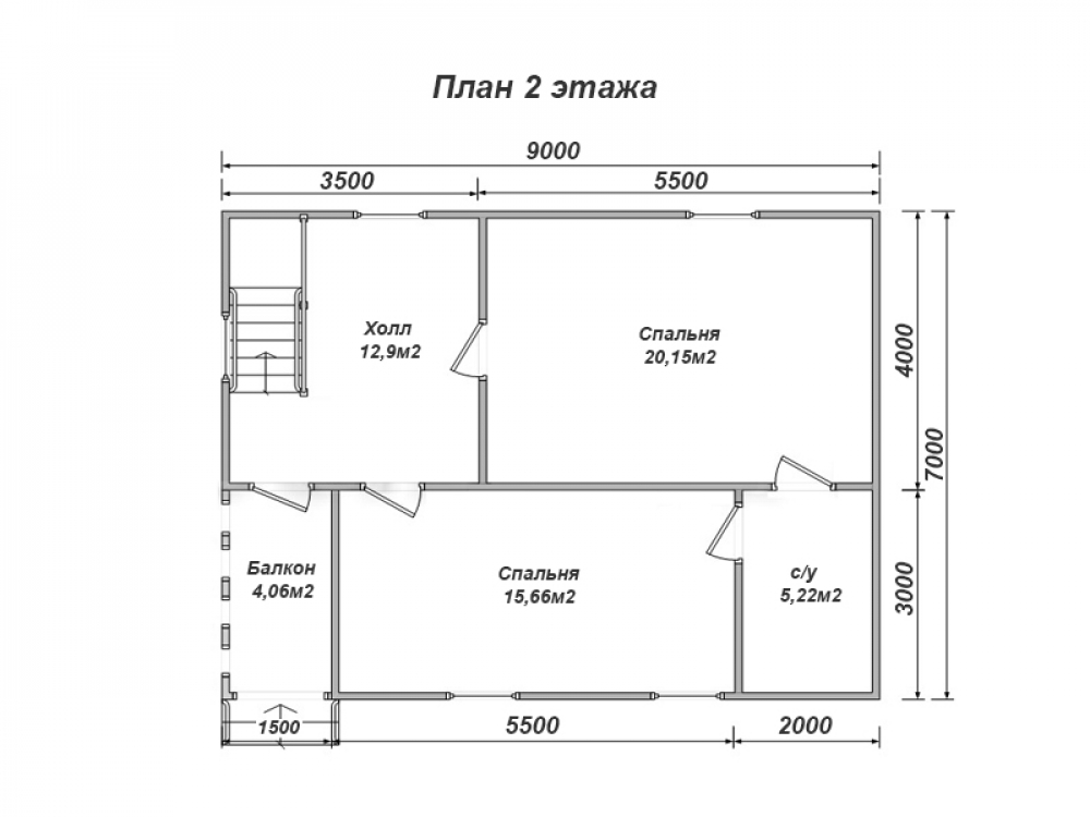
Проект двухэтажного дома Большой двухэтажный дом 7х9 (К-36)
Площадь
126 м 2
Размер дома:
7x9
Этажей:
2
Спален:
3
Санузел:
0
Гараж:
Нет
Баня:
Нет
Терраса:
Нет
Панорамные окна:
Нет
Мастер-спальня:
Нет
О проекте
Архитектура, где внешняя красота соответствует внутренней логике Каждый метр из 126 м² задействован с умом. Архитектура выполнена в стиле дома в классическом стиле. Ондулин придаёт дому выразительность и надёжность. Двухэтажная просторная планировка создаёт идеальные условия для жизни всей семьи.Характеристики
- Общая площадь: 126 м2
- Количество этажей: 2
- Стиль, разновидность: Дома в ином стиле
- Форма: Прямоугольные дома
- Тип кровли: Дома с двускатной крышей
- Отделка: Без отделки
- Размер: 7x9
Отправьте свои контакты и мы расчитаем вам смету
Скорее всего вам подойдут следующие проекты домов:
Дом подходит для:
Дом подходит для:
Дом подходит для:












