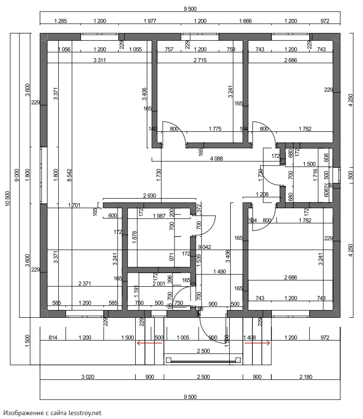
Проект одноэтажного дома Бородино
Площадь
85 м 2
Размер дома:
9x10
Этажей:
1
Спален:
3
Санузел:
0
Гараж:
Нет
Баня:
Нет
Терраса:
Нет
Панорамные окна:
Нет
Мастер-спальня:
Нет
О проекте
Архитектурный эксперимент, где переменная - дизайн, а константа - семья.36 м² — достаточная площадь для организации всех необходимых зон. Выбор бревна обусловлен его теплоизоляционными свойствами. Одноэтажная современная планировка разделяет приватные и общественные зоны. Материал кровли — ондулин, что добавляет зданию индивидуальность.Характеристики
- Общая площадь: 85 м2
- Количество этажей: 1
- Стиль, разновидность: Дома в стиле Русский
- Форма: Прямоугольные дома
- Тип кровли: Дома с двускатной крышей
- Отделка: Без отделки
- Размер: 9x10
Отправьте свои контакты и мы расчитаем вам смету
Скорее всего вам подойдут следующие проекты домов:
Дом подходит для:
Дом подходит для:
Дом подходит для:










