Проект одноэтажного дома Бревенчатый дом Горная Сказка-84
Площадь
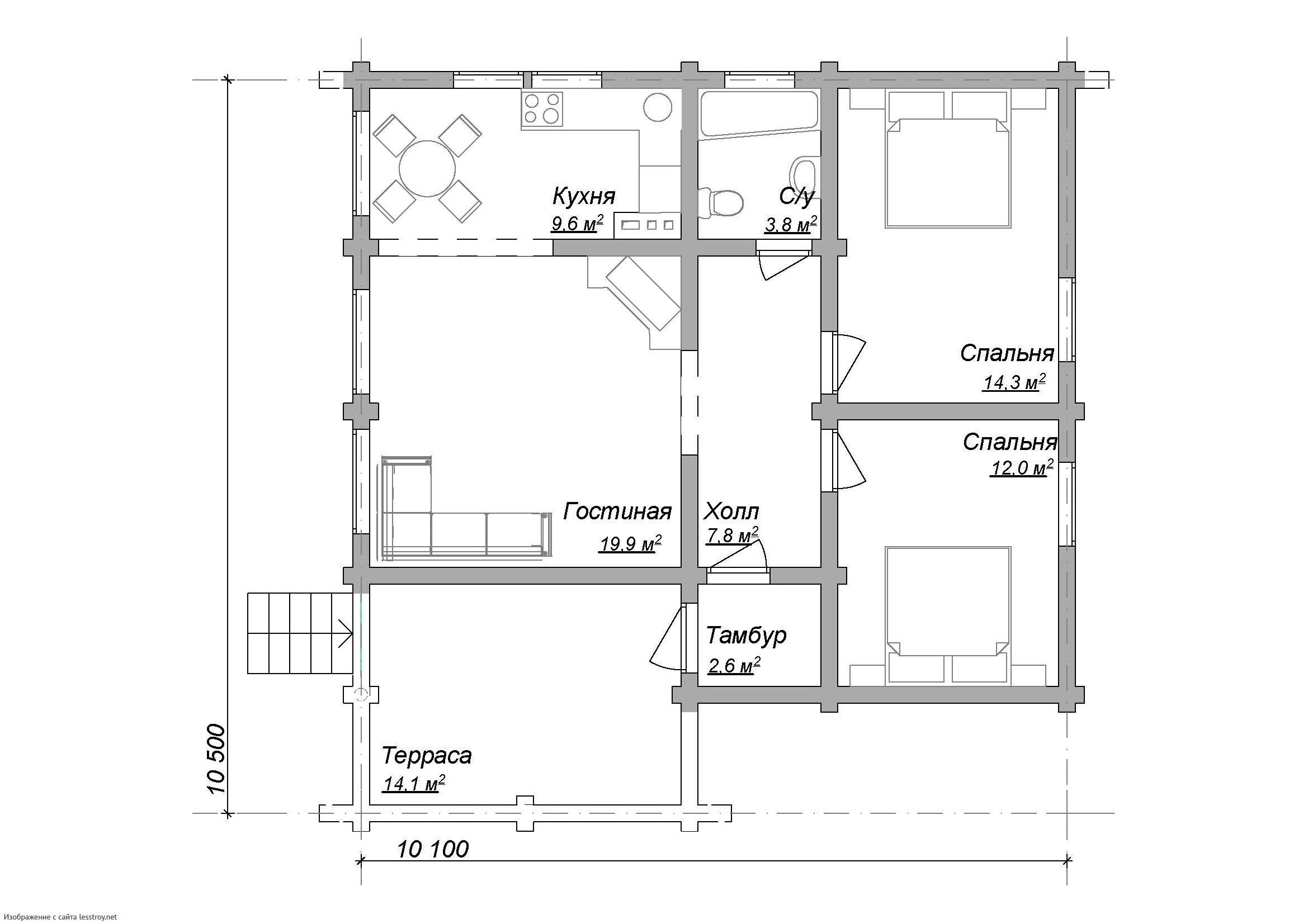
84 м 2
Размер дома:
Этажей:
1
Спален:
2
Санузел:
0
Гараж:
Нет
Баня:
Нет
Терраса:
Нет
Панорамные окна:
Нет
Мастер-спальня:
Нет
О проекте
Сочетание технологий и экологичности.Жить удобно на 96 м² — здесь всё на своих местах. В качестве кровли использована рубероид — материал, проверенный временем. Двухэтажная эргономичная планировка обеспечивает практичное распределение комнат. Проект включает 4 спальни — удобно для семьи.Характеристики
- Общая площадь: 84 м2
- Количество этажей: 1
- Стиль, разновидность: Дома в стиле Шале
- Форма: Прямоугольные дома
- Тип кровли: Дома с мансардной крышей
- Отделка: Без отделки
Отправьте свои контакты и мы расчитаем вам смету
Скорее всего вам подойдут следующие проекты домов:
Дом подходит для:
Дом подходит для:
Дом подходит для:












