Проект двухэтажного дома Бревно 15-80
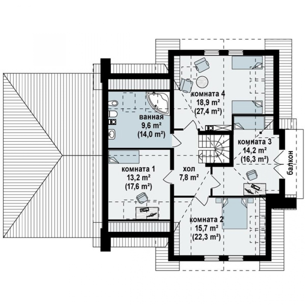
Площадь
158 м 2
Размер дома:
Этажей:
2
Спален:
0
Санузел:
0
Гараж:
Нет
Баня:
Нет
Терраса:
Нет
Панорамные окна:
Нет
Мастер-спальня:
Нет
О проекте
Пространство, где даже в самом маленьком санузле не чувствуешь стеснения. 158 м², где всё логично, удобно и на месте. Крыша из рубероид подчёркивает современный облик дома. Архитектура выполнена в стиле дома в классическом стиле. Стены из бревна хорошо держат тепло и защищают от шума.Характеристики
- Общая площадь: 158 м2
- Количество этажей: 2
- Стиль, разновидность: Дома в ином стиле
- Тип кровли: Дома с иной крышей
- Отделка: Без отделки
Отправьте свои контакты и мы расчитаем вам смету
Скорее всего вам подойдут следующие проекты домов:
Дом подходит для:
Дом подходит для:
Дом подходит для:












