Проект двухэтажного дома Бриз–225
Дом подходит для:
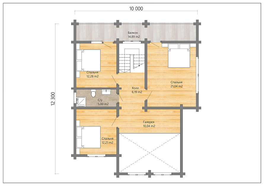
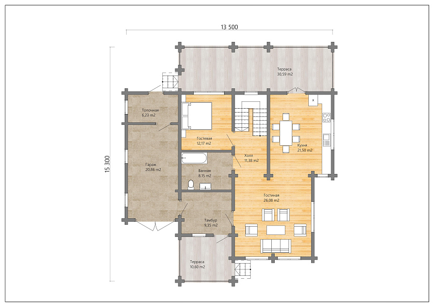
Площадь
227 м 2
Размер дома:
13.5x15.З
Этажей:
2
Спален:
4
Санузел:
2
Гараж:
Да
Баня:
Нет
Терраса:
Нет
Панорамные окна:
Нет
Мастер-спальня:
Нет
Планировка
Характеристики
- Общая площадь: 226.64 м2
- Жилая площадь: 183 м2
- Количество этажей: 2
- Гараж: 20,8
- Площадь кровли: 231 м2
- Отделка: Без отделки
- Фундамент: Дома со свайным фундаментом
Материалы и перечень работ
- Разметка свайного поля
- Железобетонные забивные сваи из высокопрочного бетона и рифленой арматуры
- Забивка свай с применением на площадке специальной техники - миникопра
- Обрезка свай по уровню
- Крепление и гидроизоляция оголовков свай
- Обвязка брусом сечением 200 х 150 мм, обработанный биозащитным составом
- Рулонная гидроизоляция
- Брус профилированный камерной сушки сечением 195х145(h)мм
- Антисептирование стенового бруса с 4-х сторон на производстве
- Обработка торцов составом, предохраняющим от проникновения влаги, растрескивания
- Стропильная система из доски 50х200 мм
- Металлочерепицы Grand Line (покрытие Satin, комплектующие по проекту)
- Контробрешетка из бруска 50х50 мм
- Обрешетка из доски 25х100 мм
- Все деревянные элементы обработаны биозащитным составом
- В стоимость не входят
- В стоимость не входит
- Утепление межвенцового паза и чаши утеплителем Политерм
- Крепежные элементы для монтажа стенового комплекта
- Балки перекрытия из сухого бруса 100х200 мм, обработанные биозащитным составом
- Упаковка в специальную защитную пленку
- Разметка свайного поля
- Железобетонные забивные сваи из высокопрочного бетона и рифленой арматуры
- Забивка свай с применением на площадке специальной техники - миникопра
- Обрезка свай по уровню
- Крепление и гидроизоляция оголовков свай
- Обвязка брусом сечением 200 х 150 мм, обработанный биозащитным составом
- Рулонная гидроизоляция
- Брус профилированный камерной сушки сечением 195х145(h)мм
- Антисептирование стенового бруса с 4-х сторон на производстве
- Обработка торцов составом, предохраняющим от проникновения влаги, растрескивания
- Стропильная система из доски 50х200 мм
- Металлочерепицы Grand Line (покрытие Satin, комплектующие по проекту)
- Контробрешетка из бруска 50х50 мм
- Обрешетка из доски 25х100 мм
- Все деревянные элементы обработаны биозащитным составом
- В стоимость не входят
- В стоимость не входит
- Утепление межвенцового паза и чаши утеплителем Политерм
- Крепежные элементы для монтажа стенового комплекта
- Балки перекрытия из сухого бруса 100х200 мм, обработанные биозащитным составом
- Упаковка в специальную защитную пленку
Что еще входит в стоимость:
Отправьте свои контакты и мы расчитаем вам смету
Скорее всего вам подойдут следующие проекты домов:
Дом подходит для:
Дом подходит для:
Дом подходит для:











