Проект одноэтажного дома Брус-10. Дом из бруса 5,5*7,5 м
Площадь
63 м 2
Размер дома:
6x8
Этажей:
1
Спален:
1
Санузел:
0
Гараж:
Нет
Баня:
Нет
Терраса:
Нет
Панорамные окна:
Нет
Мастер-спальня:
Нет
О проекте
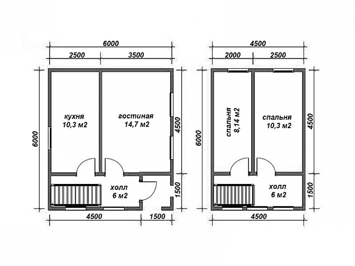
В архитектурном решении гармонично сочетаются новаторские идеи и традиционные семейные ценности. Дом с 94 м² даёт ощущение гармонии. В доме предусмотрено 2 спальни, что важно для комфорта. Материал кровли — ондулин, что добавляет зданию индивидуальность. Конструкция из бруса обеспечивает прочность и долговечность.Характеристики
- Общая площадь: 63 м2
- Количество этажей: 1
- Стиль, разновидность: Дома в ином стиле
- Форма: Прямоугольные дома
- Тип кровли: Дома с двускатной крышей
- Отделка: Без отделки
- Размер: 6x8









