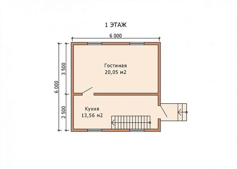
Проект двухэтажного дома БРУСОВОЙ ДОМ 6 НА 6
Площадь
66 м 2
Размер дома:
6x6
Этажей:
2
Спален:
1
Санузел:
0
Гараж:
Нет
Баня:
Нет
Терраса:
Нет
Панорамные окна:
Нет
Мастер-спальня:
Нет
О проекте
Интерьеры, где стены окрашены в успокаивающие природные оттенки.66 м² — оптимальный метраж для комфорта и уединения. Проект включает 1 спальня — удобно для семьи. Брус делает дом надёжным при любой погоде. Крыша из рубероид подчёркивает современный облик дома.Характеристики
- Общая площадь: 66 м2
- Количество этажей: 2
- Стиль, разновидность: Дома в стиле Русский
- Тип кровли: Дома с двускатной крышей
- Отделка: Без отделки
- Размер: 6x6











