Проект двухэтажного дома БС-129
Дом подходит для:
Площадь
230 м 2
Размер дома:
9,3 x 17,8
Этажей:
2
Спален:
3
Санузел:
3
Гараж:
Да
Баня:
Нет
Терраса:
Нет
Панорамные окна:
Нет
Мастер-спальня:
Нет
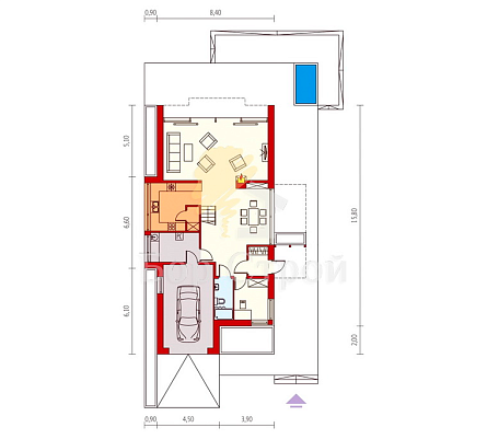
Планировка
Фасады
О проекте
Просторный дом из газобетона площадью 230 м² — мечта для большой семьи. Жилая зона 182 м² продумана до мелочей, создавая ощущение простора. Цементно-песчаная черепица на крыше придает дому благородный вид, а три спальни обеспечивают комфорт. Здесь царит атмосфера спокойствия и надежности.Характеристики
- Общая площадь: 230 м2
- Жилая площадь: 182 м2
- Количество этажей: 2
- Гараж: 19,89
- Высота дома: 7 м
- Площадь кровли: 230 м2
- Отделка: Без отделки
Материалы и перечень работ
- По запросу
- По запросу
- По запросу
- По запросу
- По запросу
- По запросу
- По запросу
- По запросу
- По запросу
- По запросу
- По запросу
- По запросу
Что еще входит в стоимость:
Отправьте свои контакты и мы расчитаем вам смету
Скорее всего вам подойдут следующие проекты домов:
Проект двухэтажного дома Дом id-124280
Для большой семьи
Дом подходит для:
Дом подходит для:
Проект двухэтажного дома Дом id-125895
Для большой семьи
Дом подходит для:
Дом подходит для:
Проект двухэтажного дома Дом id-124591
Для большой семьи
Дом подходит для:
Дом подходит для:


























