Проект двухэтажного дома Чекалин - дом из газобетона для ПМЖ
Площадь
97 м 2
Размер дома:
Этажей:
2
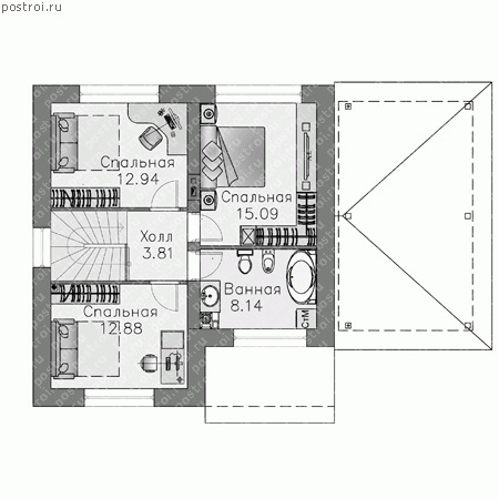
Спален:
4
Санузел:
0
Гараж:
Нет
Баня:
Нет
Терраса:
Нет
Панорамные окна:
Нет
Мастер-спальня:
Нет
О проекте
Дом из газобетона площадью 97 м² с четырьмя спальнями — это надежность и комфорт. Два этажа позволяют удобно зонировать пространство, а металлочерепица добавляет современности. Идеальный выбор для постоянного проживания.Характеристики
- Общая площадь: 97 м2
- Количество этажей: 2
- Стиль, разновидность: Дома в ином стиле
- Форма: Квадратные дома
- Тип кровли: Дома с двускатной крышей
- Отделка: Без отделки
Отправьте свои контакты и мы расчитаем вам смету
Скорее всего вам подойдут следующие проекты домов:
Дом подходит для:
Дом подходит для:
Дом подходит для:










