Проект двухэтажного дома Cinco Stylish
Дом подходит для:
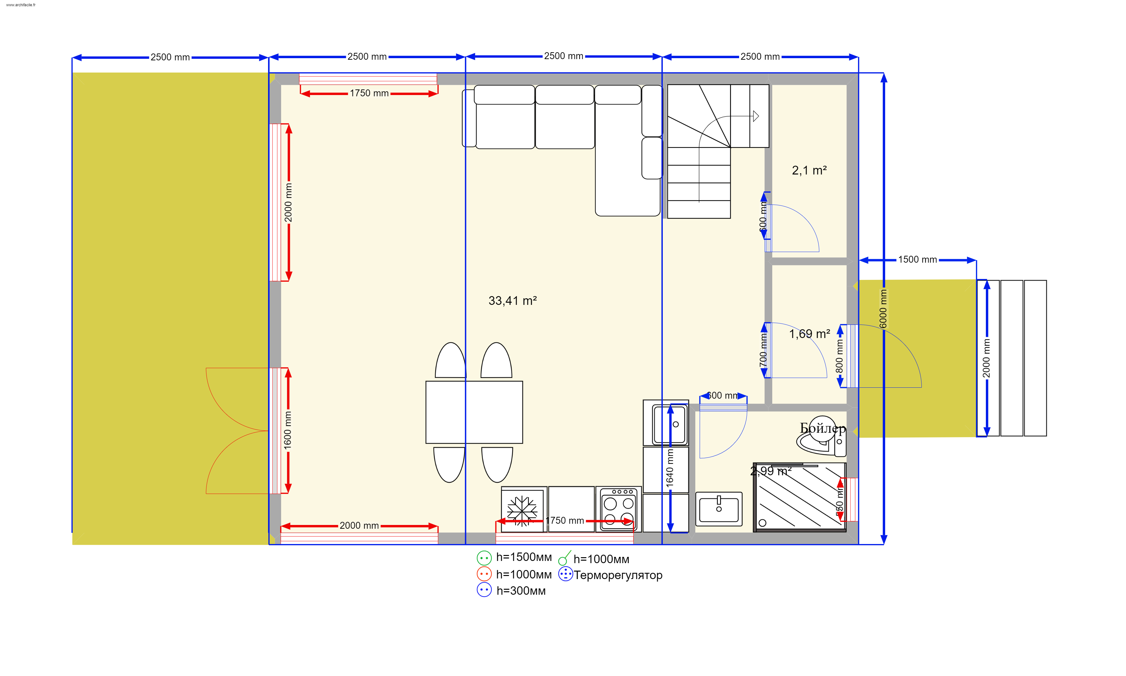
Площадь
75 м 2
Размер дома:
6х10
Этажей:
2
Спален:
2
Санузел:
1
Гараж:
Нет
Баня:
Нет
Терраса:
Нет
Панорамные окна:
Нет
Мастер-спальня:
Нет
Планировка
Фасады
О проекте
Двухэтажный проект площадью 75 м² с жилыми 48 м² — это баланс стиля и функциональности. Каркасные стены создают легкую и теплую атмосферу, а две спальни обеспечивают комфорт. Светлые интерьеры и продуманная планировка делают пространство уютным. Это дом для тех, кто ценит современные решения.Характеристики
- Общая площадь: 75 м2
- Жилая площадь: 48 м2
- Количество этажей: 2
- Гараж: нет
- Площадь кровли: 75 м2
- Отделка: Без отделки
- Фундамент: Дома со свайным фундаментом
Материалы и перечень работ
- Фундамент свайный металлический
- Каркас из сухой импрегнированной древесины сорта АВ
- Подшив основания пола сеткой либо оцинкованным листом (на выбор)
- Утепление пола минеральной ватой 200мм
- Утепление стен ватой 150мм
- Ветрозащитная мембрана Изоспан AQ proff
- Утепление потолка минеральной ватой 200мм
- Фольгированная пароизоляция Ондутис R Termo
- Окна в теплом профиле 70мм
- Входная дверь металлическая с терморазрывом до -30
- В стоимость не входит
- Комбинированная отделка фасада металлом и деревом
- Монтаж каркаса перегородок
- Фундамент свайный металлический
- Каркас из сухой импрегнированной древесины сорта АВ
- Подшив основания пола сеткой либо оцинкованным листом (на выбор)
- Утепление пола минеральной ватой 200мм
- Утепление стен ватой 150мм
- Ветрозащитная мембрана Изоспан AQ proff
- Утепление потолка минеральной ватой 200мм
- Фольгированная пароизоляция Ондутис R Termo
- Окна в теплом профиле 70мм
- Входная дверь металлическая с терморазрывом до -30
- В стоимость не входит
- Комбинированная отделка фасада металлом и деревом
- Монтаж каркаса перегородок
Что еще входит в стоимость:
Отправьте свои контакты и мы расчитаем вам смету
Скорее всего вам подойдут следующие проекты домов:
Дом подходит для:
Дом подходит для:
Дом подходит для:











