Проект двухэтажного дома Classic M161
Дом подходит для:
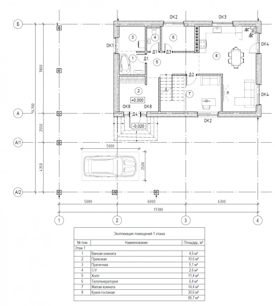
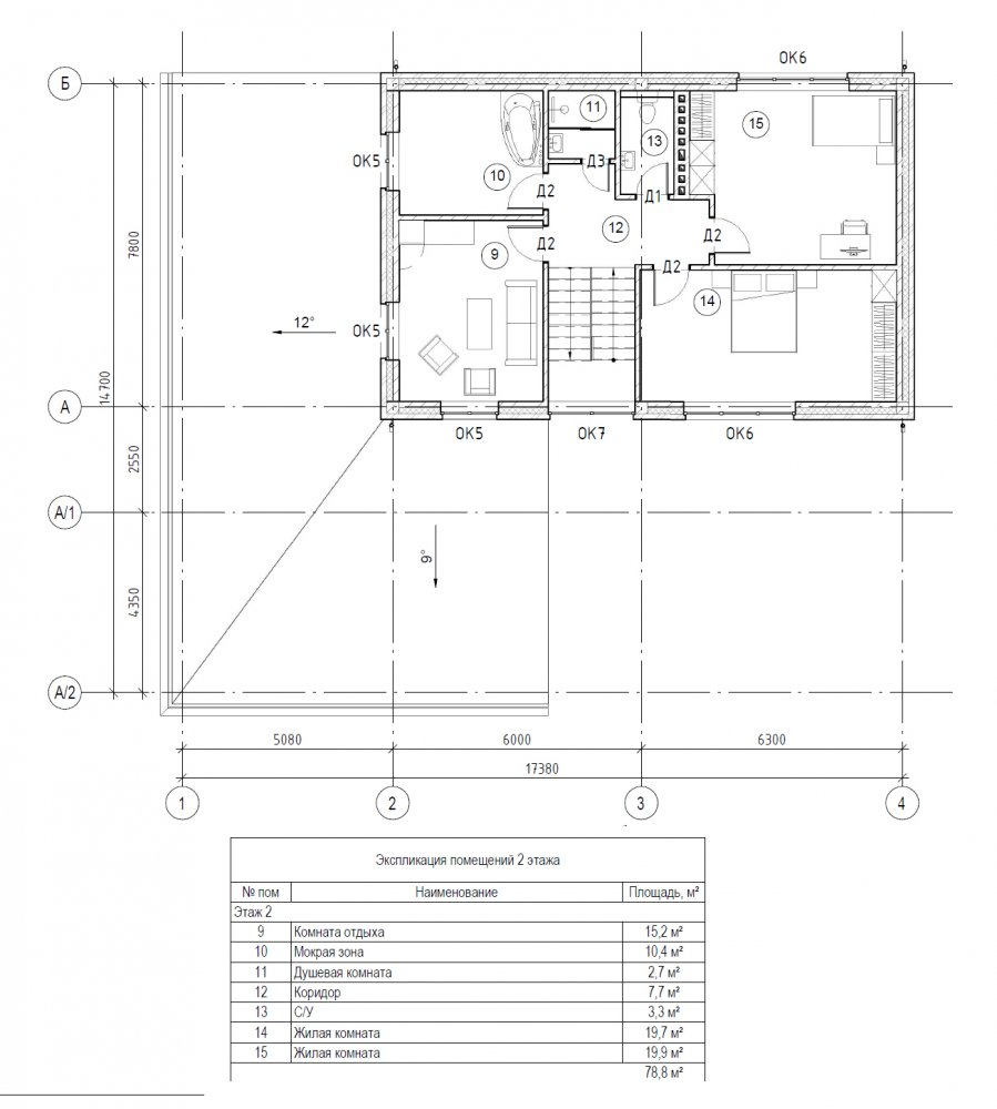
Площадь
161 м 2
Размер дома:
17,3х14,7
Этажей:
2
Спален:
4
Санузел:
4
Гараж:
Нет
Баня:
Нет
Терраса:
Нет
Панорамные окна:
Нет
Мастер-спальня:
Нет
Планировка
Характеристики
- Общая площадь: 161 м2
- Жилая площадь: 124 м2
- Количество этажей: 2
- Гараж: нет
- Площадь кровли: 165 м2
- Отделка: Без отделки
Материалы и перечень работ
- Стаканного типа на опорной плите, либо забивных бетонных сваях, гидроизоляция 2х слойная
- Колонны и ригели по проекту, арматурные элементы, монтаж каркаса, заливка товарным бетоном
- Перекрытия пустотная ЖБ плита безопалубочного формования, 220мм, несущая способность от 800кг/м2; монолитный участки по проекту
- Внешние стены - газобетонный/полистиролбетонный блок D400 толщиной 300-400 мм (по проекту)
- Перекрытие кровельное - ЖБ плита безопалубочного формования, 220мм, несущая способность от 800кг/м2; монолитные участки по проекту
- Временная гидроизоляция
- В стоимость не входят
- В стоимость не входит
- В стоимость не входят
- Стаканного типа на опорной плите, либо забивных бетонных сваях, гидроизоляция 2х слойная
- Колонны и ригели по проекту, арматурные элементы, монтаж каркаса, заливка товарным бетоном
- Перекрытия пустотная ЖБ плита безопалубочного формования, 220мм, несущая способность от 800кг/м2; монолитный участки по проекту
- Внешние стены - газобетонный/полистиролбетонный блок D400 толщиной 300-400 мм (по проекту)
- Перекрытие кровельное - ЖБ плита безопалубочного формования, 220мм, несущая способность от 800кг/м2; монолитные участки по проекту
- Временная гидроизоляция
- В стоимость не входят
- В стоимость не входит
- В стоимость не входят
Что еще входит в стоимость:
Отправьте свои контакты и мы расчитаем вам смету
Скорее всего вам подойдут следующие проекты домов:
Проект двухэтажного дома Дом id-114662
Семья с двумя детьми
Дом подходит для:
Дом подходит для:
Проект двухэтажного дома Дом id-125898
Семья с двумя детьми
Дом подходит для:
Дом подходит для:
Проект двухэтажного дома Дом id-124856
Семья с двумя детьми
Дом подходит для:
Дом подходит для:


























