Проект двухэтажного дома Д-0007 Южный
Площадь
247 м 2
Размер дома:
Этажей:
2
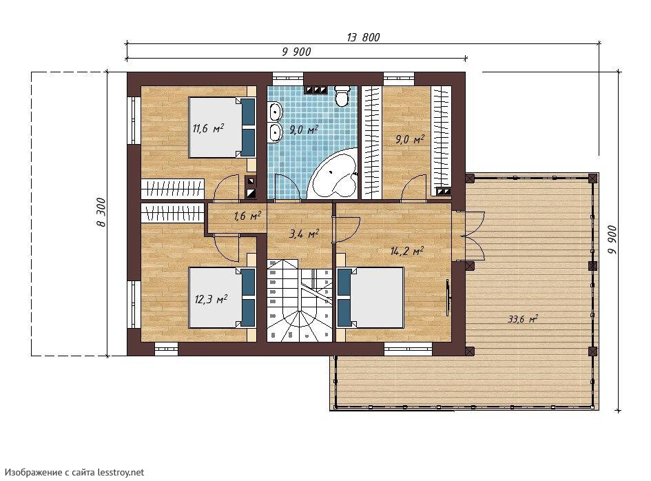
Спален:
4
Санузел:
0
Гараж:
Нет
Баня:
Нет
Терраса:
Нет
Панорамные окна:
Нет
Мастер-спальня:
Нет
О проекте
Архитектура, что дарит ощущение полной безопасности.Интерьер выстраивается вокруг 247 м² уюта и свободы. Крыша из черепица подчёркивает современный облик дома. Наличие 4 спальни удовлетворит запросы семьи с детьми. Стены из керамоблока хорошо держат тепло и защищают от шума.Характеристики
- Общая площадь: 247 м2
- Количество этажей: 2
- Стиль, разновидность: Дома в стиле Шале
- Форма: Прямоугольные дома
- Тип кровли: Дома с четырехскатной крышей (вальмовой)
- Отделка: Без отделки
Отправьте свои контакты и мы расчитаем вам смету
Скорее всего вам подойдут следующие проекты домов:
Дом подходит для:



