Проект одноэтажного дома Д-129БО
Дом подходит для:
Площадь
129 м 2
Размер дома:
10,2 х 13,6
Этажей:
1
Спален:
3
Санузел:
1
Гараж:
Нет
Баня:
Нет
Терраса:
Нет
Панорамные окна:
Нет
Мастер-спальня:
Нет
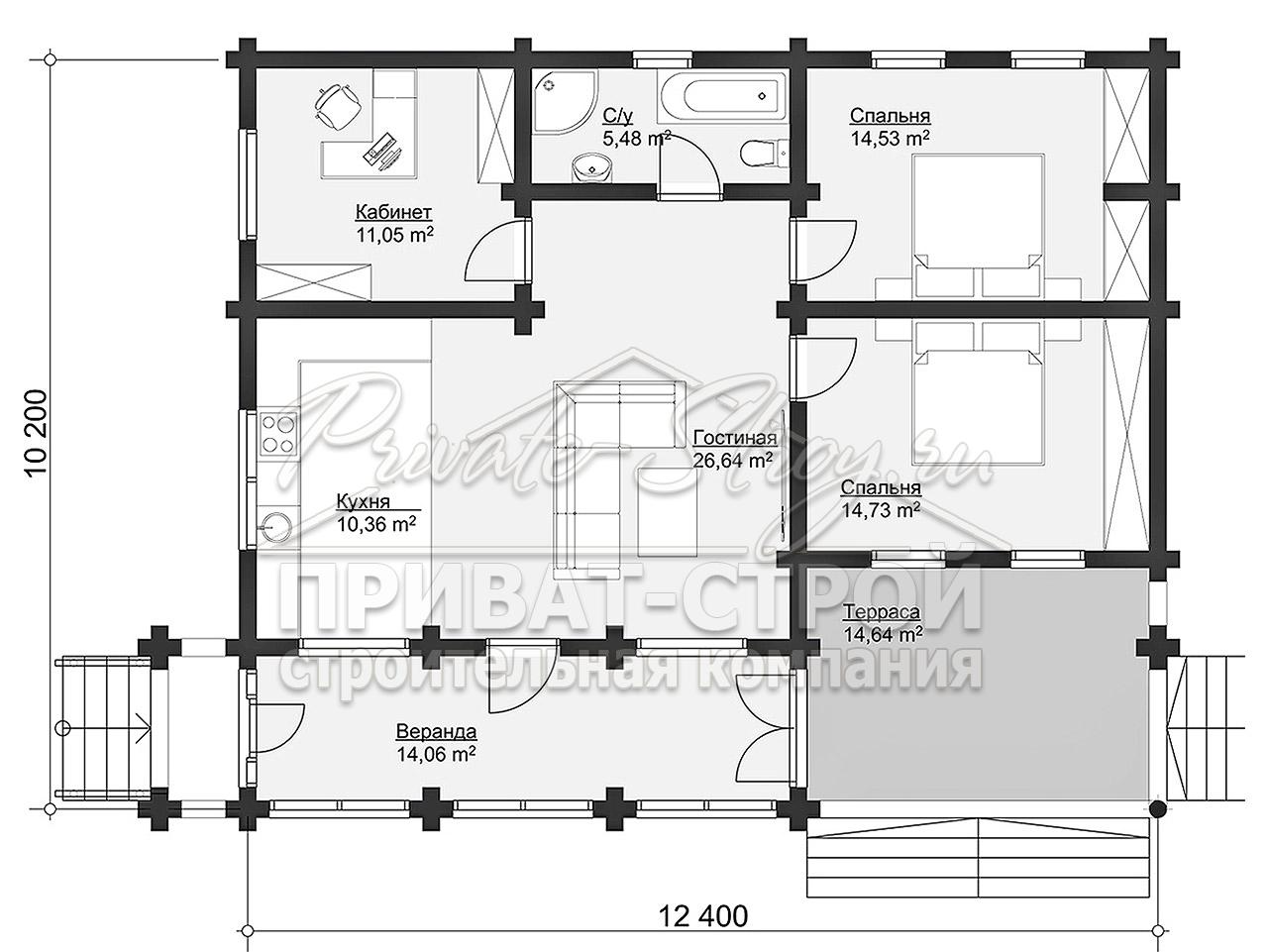
Планировка
Фасады
О проекте
Просторный дом площадью 129 м² с жилыми 77 м² — это комфорт и практичность для семьи с двумя детьми. Бревенчатые стены дарят тепло, а три спальни и санузел создают удобство. Светлые интерьеры и продуманная планировка наполняют дом гармонией. Это место, где каждый чувствует себя уютно.Характеристики
- Общая площадь: 129 м2
- Жилая площадь: 77 м2
- Количество этажей: 1
- Гараж: нет
- Площадь кровли: 136 м2
- Отделка: Без отделки
- Фундамент: Дома со свайно-винтовым фундаментом
Материалы и перечень работ
- Фундамент на винтовых сваях с обвязкой брусом
- Комплект дома из оцилиндрованного бревна
- Половые и потолочные балки сечением 100х200 мм
- Черновой пол
- Стропильная система 50х200 мм
- Обрешетка
- Временная кровля под рубероид
- В стоимость не входит
- В стоимость не входит
- В стоимость не входит
- Фундамент на винтовых сваях с обвязкой брусом
- Комплект дома из оцилиндрованного бревна
- Половые и потолочные балки сечением 100х200 мм
- Черновой пол
- Стропильная система 50х200 мм
- Обрешетка
- Временная кровля под рубероид
- В стоимость не входит
- В стоимость не входит
- В стоимость не входит
Что еще входит в стоимость:
Отправьте свои контакты и мы расчитаем вам смету
Скорее всего вам подойдут следующие проекты домов:
Проект одноэтажного дома Проект одноэтажного дома из клееного бруса Пятый угол -115
Семья с одним ребенком
Дом подходит для:
Дом подходит для:
Проект одноэтажного дома Проект гостевого дома в таёжном стиле СЛОБОДА, диаметр 380 мм
Семья с одним ребенком
Дом подходит для:
Дом подходит для:
Дом подходит для:






