Проект двухэтажного дома Д-14
Дом подходит для:
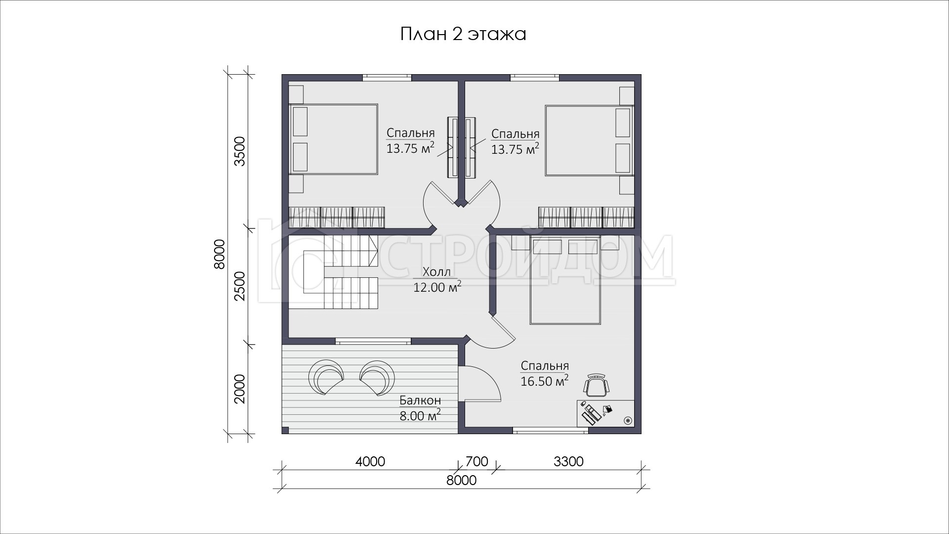
Площадь
128 м 2
Размер дома:
8x8
Этажей:
2
Спален:
3
Санузел:
1
Гараж:
Нет
Баня:
Нет
Терраса:
Нет
Панорамные окна:
Нет
Мастер-спальня:
Нет
Планировка
Фасады
О проекте
Дом площадью 128 м² с жилой зоной 107 м² сочетает в себе современный дизайн и практичность. Три спальни и один санузел создают удобное пространство для семьи. Каркасные стены обеспечивают тепло и надежность, а продуманная планировка делает жизнь здесь комфортной. Это дом, где каждый найдет свой уголок для отдыха.Характеристики
- Общая площадь: 128 м2
- Жилая площадь: 107 м2
- Количество этажей: 2
- Гараж: нет
- Площадь кровли: 134 м2
- Отделка: Без отделки
- Размер: 8x8
Материалы и перечень работ
- В стоимость не входит
- Основание брус 150х150 мм;
- Черновой пол сухая доска 25х100 мм;
- Балки перекрытия первого этажа сухая доска 40х150 мм;
- Балки перекрытия второго этажа сухая доска 40х150 мм;
- Силовой каркас наружных стен сухая доска 40х150 мм;
- Стропила сухая доска 40х150 мм;
- Металлочерепица профиль толщина стали 0,45(мм), покрытие полиэстер 25мкм, количество цинка 100-140г\м2, производитель металл профиль, высота профиля 46(мм);
- Водосток пластиковый Docke цвет белый;
- Подкровельная пароизоляция ондутис SMART A 120 с интегрированной монтажной лентой 1,5х50м
- Подкровельный вентзазор сухой брусок 40х50 мм;
- Окна ПВХ двухкамерные производство Рехау цвет белые, фурнитура Vorne, с москитными сетками, с подоконниками 200(мм) ПВХ, с отливами 100(мм), с откосами (деревянные), количество и размеры по проекту;
- Входная дверь металлическая 2,10*0,90м (производство Россия, наружный стальной лист толщиной - 1.2 (мм), материал отделки внутри - панель МДФ 8 (мм) (ламинат, фрезеровка), количество замковых механизмов - 2 шт., замковый механизм (основной) - Border ЗВ 4-3/85М (цилиндровый)
- В стоимость не входит
- Отделка имитация бруса 18х140 мм камерной сушки;
- Подшивка свесов вагонка 90х16мм класса «А»
- Вентилируемый фасад рейка сухая строганная 40х50 мм;
- Ветрозащита мембрана «TECHNOHAUT A-75»
- В стоимость не входит
- Основание брус 150х150 мм;
- Черновой пол сухая доска 25х100 мм;
- Балки перекрытия первого этажа сухая доска 40х150 мм;
- Балки перекрытия второго этажа сухая доска 40х150 мм;
- Силовой каркас наружных стен сухая доска 40х150 мм;
- Стропила сухая доска 40х150 мм;
- Металлочерепица профиль толщина стали 0,45(мм), покрытие полиэстер 25мкм, количество цинка 100-140г\м2, производитель металл профиль, высота профиля 46(мм);
- Водосток пластиковый Docke цвет белый;
- Подкровельная пароизоляция ондутис SMART A 120 с интегрированной монтажной лентой 1,5х50м
- Подкровельный вентзазор сухой брусок 40х50 мм;
- Окна ПВХ двухкамерные производство Рехау цвет белые, фурнитура Vorne, с москитными сетками, с подоконниками 200(мм) ПВХ, с отливами 100(мм), с откосами (деревянные), количество и размеры по проекту;
- Входная дверь металлическая 2,10*0,90м (производство Россия, наружный стальной лист толщиной - 1.2 (мм), материал отделки внутри - панель МДФ 8 (мм) (ламинат, фрезеровка), количество замковых механизмов - 2 шт., замковый механизм (основной) - Border ЗВ 4-3/85М (цилиндровый)
- В стоимость не входит
- Отделка имитация бруса 18х140 мм камерной сушки;
- Подшивка свесов вагонка 90х16мм класса «А»
- Вентилируемый фасад рейка сухая строганная 40х50 мм;
- Ветрозащита мембрана «TECHNOHAUT A-75»
Что еще входит в стоимость:
Отправьте свои контакты и мы расчитаем вам смету
Скорее всего вам подойдут следующие проекты домов:
Дом подходит для:
Дом подходит для:
Дом подходит для:












