Проект одноэтажного дома D-2
Дом подходит для:
Площадь
81 м 2
Размер дома:
6x9
Этажей:
1
Спален:
3
Санузел:
1
Гараж:
Нет
Баня:
Нет
Терраса:
Да
Панорамные окна:
Нет
Мастер-спальня:
Нет
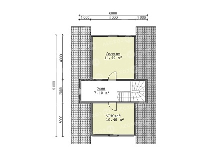
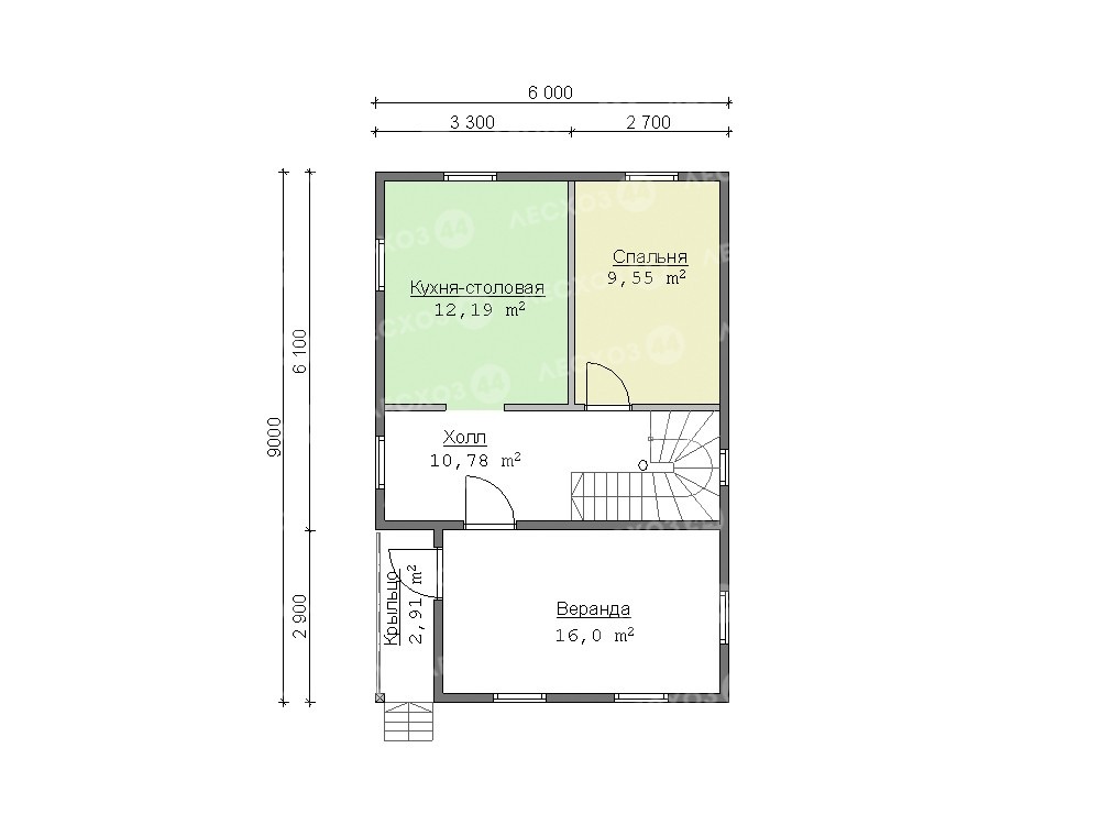
Планировка
Характеристики
- Общая площадь: 81 м2
- Жилая площадь: 43 м2
- Количество этажей: 1
- Гараж: нет
- Площадь кровли: 89 м2
- Форма: Квадратные дома
- Тип кровли: Дома с четырехскатной крышей (вальмовой)
- Пристрой: Дома с террасой
- Отделка: Без отделки
- Размер: 6x9
Материалы и перечень работ
- В стоимость не входит
- Наружные стены дома - брус ест. влажности 150х150 мм.
- Фронтоны – имитация бруса.
- Внутренние перегородки 1-го этажа - брус ест. влажности 100х150 мм.
- Внутренние перегородки 2-го этажа - каркасные, устанавливаются при отделке, после усадки.
- Балки пола и потолка - брус ест. влажности 100х150 мм.
- Стропильная система - брус ест. влажности 50х150 мм.
- Обрешётка - доска ест. влажности 25х150мм.
- Контробрешётка крыши - брусок 50х50 мм.
- Подкровельная гидро-ветрозащитная мембрана
- Обработка материала антисептиком в осеннее и летнее время.
- В стоимость не входит
- В стоимость не входит
- В стоимость не входит
- В стоимость не входит
- Наружные стены дома - брус ест. влажности 150х150 мм.
- Фронтоны – имитация бруса.
- Внутренние перегородки 1-го этажа - брус ест. влажности 100х150 мм.
- Внутренние перегородки 2-го этажа - каркасные, устанавливаются при отделке, после усадки.
- Балки пола и потолка - брус ест. влажности 100х150 мм.
- Стропильная система - брус ест. влажности 50х150 мм.
- Обрешётка - доска ест. влажности 25х150мм.
- Контробрешётка крыши - брусок 50х50 мм.
- Подкровельная гидро-ветрозащитная мембрана
- Обработка материала антисептиком в осеннее и летнее время.
- В стоимость не входит
- В стоимость не входит
- В стоимость не входит
Что еще входит в стоимость:
Отправьте свои контакты и мы расчитаем вам смету
Скорее всего вам подойдут следующие проекты домов:
Дом подходит для:
Дом подходит для:











