Проект двухэтажного дома D-21
Дом подходит для:
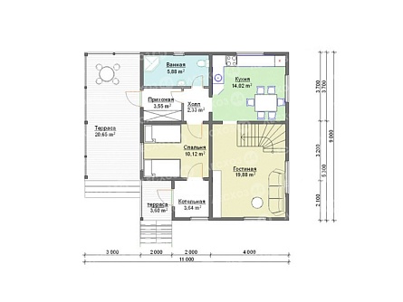
Площадь
141 м 2
Размер дома:
11х9
Этажей:
2
Спален:
4
Санузел:
1
Гараж:
Нет
Баня:
Нет
Терраса:
Да
Панорамные окна:
Нет
Мастер-спальня:
Нет
Планировка
Характеристики
- Общая площадь: 141 м2
- Жилая площадь: 100 м2
- Количество этажей: 2
- Гараж: нет
- Площадь кровли: 149 м2
- Форма: Квадратные дома
- Тип кровли: Дома с многощипцовой крышей
- Пристрой: Дома с террасой
- Отделка: Без отделки
Материалы и перечень работ
- В стоимость не входит
- Наружные стены дома, фронтоны - брус ест. влажности 150х150 мм.
- Внутренние перегородки 1-го этажа - брус ест. влажности 100х150 мм.
- Внутренние перегородки 2-го этажа - обозначенные тонкими линиями на планах - каркасные, устанавливаются при отделке, после усадки.
- Балки пола и потолка - брус ест. влажности 100х150 мм.
- Обработка материала антисептиком в осеннее и летнее время.
- Стропильная система - брус ест. влажности 50х150 мм.
- Обрешётка - доска ест. влажности 25х150мм.
- Контробрешётка крыши - брусок 50х50 мм.
- Подкровельная гидро-ветрозащитная мембрана
- Утеплитель - джут.
- В стоимость не входит
- В стоимость не входит
- В стоимость не входит
- В стоимость не входит
- Наружные стены дома, фронтоны - брус ест. влажности 150х150 мм.
- Внутренние перегородки 1-го этажа - брус ест. влажности 100х150 мм.
- Внутренние перегородки 2-го этажа - обозначенные тонкими линиями на планах - каркасные, устанавливаются при отделке, после усадки.
- Балки пола и потолка - брус ест. влажности 100х150 мм.
- Обработка материала антисептиком в осеннее и летнее время.
- Стропильная система - брус ест. влажности 50х150 мм.
- Обрешётка - доска ест. влажности 25х150мм.
- Контробрешётка крыши - брусок 50х50 мм.
- Подкровельная гидро-ветрозащитная мембрана
- Утеплитель - джут.
- В стоимость не входит
- В стоимость не входит
- В стоимость не входит
Что еще входит в стоимость:
Отправьте свои контакты и мы расчитаем вам смету
Скорее всего вам подойдут следующие проекты домов:
Дом подходит для:
Дом подходит для:
Дом подходит для:














