Проект одноэтажного дома Д-24
Дом подходит для:
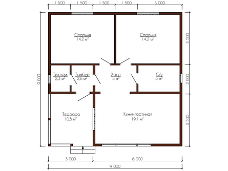
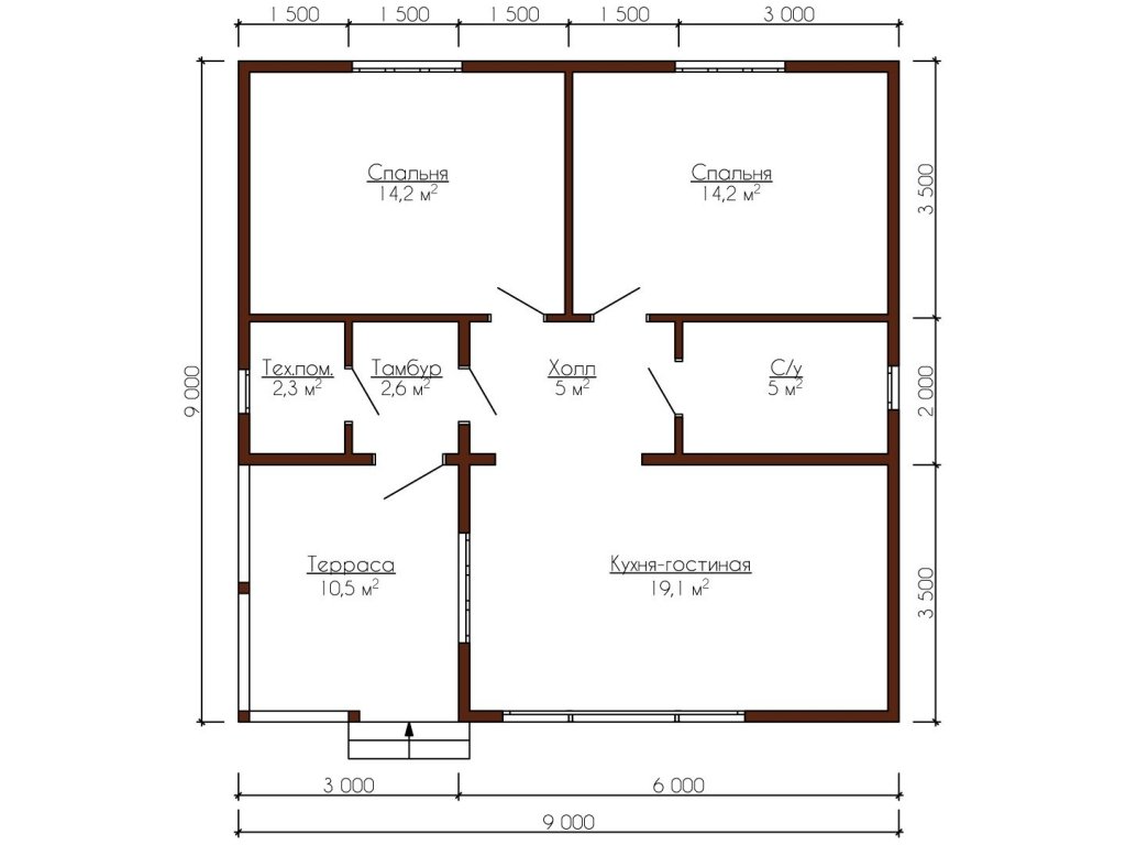
Площадь
73 м 2
Размер дома:
9x9
Этажей:
1
Спален:
2
Санузел:
1
Гараж:
Нет
Баня:
Нет
Терраса:
Нет
Панорамные окна:
Нет
Мастер-спальня:
Нет
Планировка
Характеристики
- Общая площадь: 73 м2
- Жилая площадь: 47 м2
- Количество этажей: 1
- Гараж: нет
- Площадь кровли: 78 м2
- Отделка: Без отделки
- Размер: 9x9
Материалы и перечень работ
- В стоимость не входит
- Половые лаги выполняются из бруса сечением 100×150 мм. Шаг крепления половых лаг 590 мм.
- Двойная обвязка. Выполняется из бруса сечением 150×150 мм; 200х150 мм (в зависимости от размера бруса, из которого будут собираться стены дома).
- Внешние стены выполняются из строганного профилированного брус 140х140 мм или 190х140 мм (в зависимости от выбранной комплектации), с двух сторон «Прямой». Между венцами прокладывается льноджутовое полотно.
- Межкомнатные перегородки выполняются из строганного профилированного бруса сечением 140×140 мм, с двух сторон «Прямой».
- Металлочерепица Монтеррей толщиной 0,45 мм.
- Кровля монтируется к обрешётке из строганной доски толщиной 25 мм, шаг крепления 250-350 мм (под волну металлочерепицы).
- Под обрешёткой устанавливается контррейка - строганный брусок 40х45 мм (вентиляционный зазор). Для защиты утеплителя и внутренних элементов кровли от влаги применяется диффузионная мембрана «Ондутис SA 130».
- Стропильная система выполняется из строганной доски сечением 45×140 мм. С шагом 590 мм.
- Окна не устанавливаются. В оконных проемах оставляются перевязочные венцы, 1-3 венца на проем в зависимости от размера проема.
- Двери не устанавливаются. В дверных проемах оставляются перевязочные венцы, 1-3 венца на проем в зависимости от размера проема.
- В стоимость не входит
- Фронтоны (с улицы) обшиваются имитацией бруса класса АБ, толщиной 16-18 мм.
- В стоимость не входит
- Половые лаги выполняются из бруса сечением 100×150 мм. Шаг крепления половых лаг 590 мм.
- Двойная обвязка. Выполняется из бруса сечением 150×150 мм; 200х150 мм (в зависимости от размера бруса, из которого будут собираться стены дома).
- Внешние стены выполняются из строганного профилированного брус 140х140 мм или 190х140 мм (в зависимости от выбранной комплектации), с двух сторон «Прямой». Между венцами прокладывается льноджутовое полотно.
- Межкомнатные перегородки выполняются из строганного профилированного бруса сечением 140×140 мм, с двух сторон «Прямой».
- Металлочерепица Монтеррей толщиной 0,45 мм.
- Кровля монтируется к обрешётке из строганной доски толщиной 25 мм, шаг крепления 250-350 мм (под волну металлочерепицы).
- Под обрешёткой устанавливается контррейка - строганный брусок 40х45 мм (вентиляционный зазор). Для защиты утеплителя и внутренних элементов кровли от влаги применяется диффузионная мембрана «Ондутис SA 130».
- Стропильная система выполняется из строганной доски сечением 45×140 мм. С шагом 590 мм.
- Окна не устанавливаются. В оконных проемах оставляются перевязочные венцы, 1-3 венца на проем в зависимости от размера проема.
- Двери не устанавливаются. В дверных проемах оставляются перевязочные венцы, 1-3 венца на проем в зависимости от размера проема.
- В стоимость не входит
- Фронтоны (с улицы) обшиваются имитацией бруса класса АБ, толщиной 16-18 мм.
Что еще входит в стоимость:
Отправьте свои контакты и мы расчитаем вам смету
Скорее всего вам подойдут следующие проекты домов:
Дом подходит для:
Дом подходит для:
Дом подходит для:













