Ваш город:

Проект одноэтажного дома Д-375

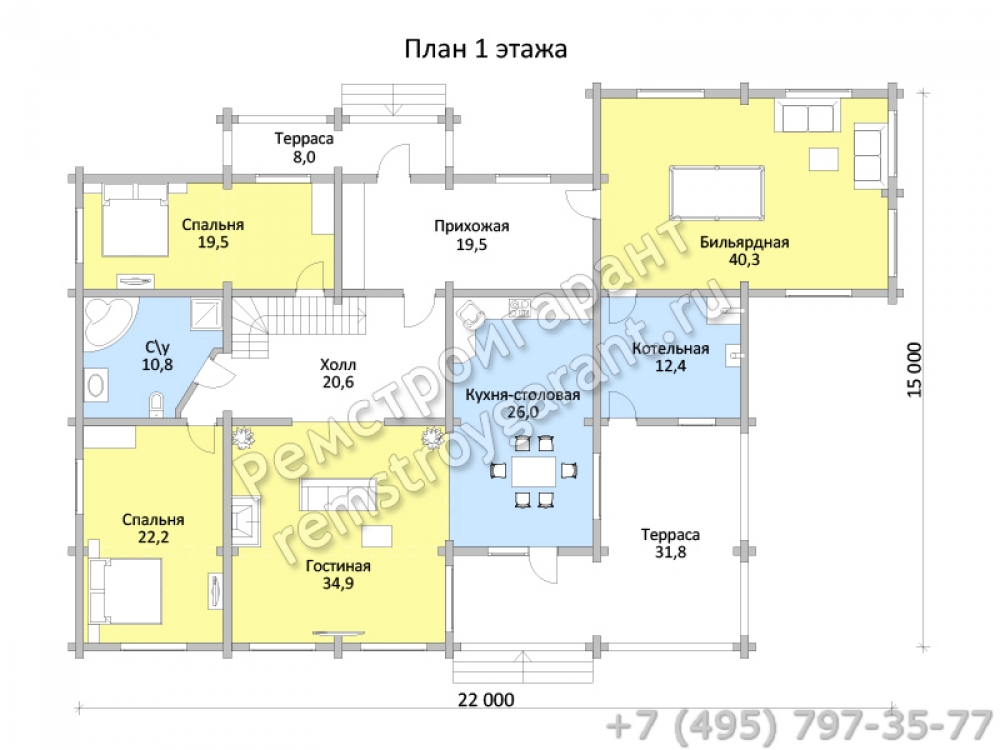
Площадь: 375 м2
Размер: 15x22
Дом подходит для:
Для большой семьи
Этажей:
1
Стены:
Кровля:
Рубероид
Цена:
Оставить заявку
Площадь
375 м 2
Размер дома:
15x22
Этажей:
1
Спален:
4
Санузел:
0
Гараж:
Нет
Баня:
Нет
Терраса:
Нет
Панорамные окна:
Нет
Мастер-спальня:
Нет
О проекте
Дом, в котором хочется создавать традиции. Благодаря 375 м² можно реализовать все бытовые задачи с комфортом. Конструкция из бревна обеспечивает прочность и долговечность. Проект включает 4 спальни — удобно для семьи. Одноэтажная уютная планировка обеспечивает практичное распределение комнат.

Характеристики
  • Общая площадь: 375 м2
  • Количество этажей: 1
  • Стиль, разновидность: Дома в ином стиле
  • Форма: Прямоугольные дома
  • Тип кровли: Дома с иной крышей
  • Отделка: Без отделки
  • Размер: 15x22
Отправьте свои контакты и мы расчитаем вам смету
Прикрепить документ
Скорее всего вам подойдут следующие проекты домов: