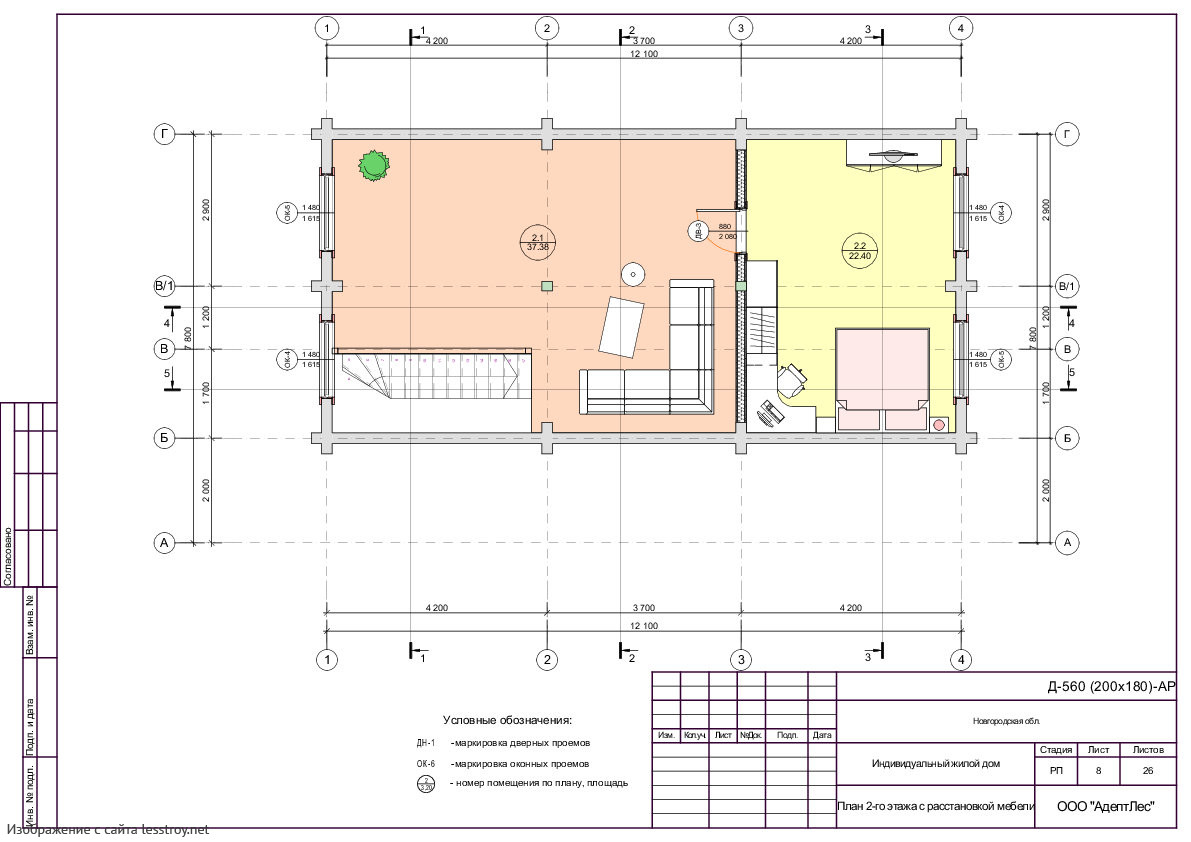
Проект двухэтажного дома д-560
Площадь
132 м 2
Размер дома:
Этажей:
2
Спален:
2
Санузел:
0
Гараж:
Нет
Баня:
Нет
Терраса:
Нет
Панорамные окна:
Нет
Мастер-спальня:
Нет
О проекте
Пространство, в котором инновации служат не показухе, а повседневному уюту. Жить удобно на 132 м² — здесь всё на своих местах. Архитектура выполнена в стиле финские дома. Количество спален — 2, делая планировку гибкой. В качестве кровли использована металлочерепица — материал, проверенный временем.Характеристики
- Общая площадь: 132 м2
- Количество этажей: 2
- Стиль, разновидность: Финские дома
- Форма: Прямоугольные дома
- Тип кровли: Дома с двускатной крышей
- Отделка: Без отделки
Отправьте свои контакты и мы расчитаем вам смету
Скорее всего вам подойдут следующие проекты домов:
Дом подходит для:
Дом подходит для:
Дом подходит для:









