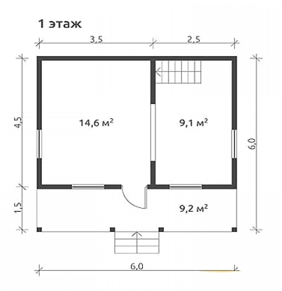
Проект двухэтажного дома Д5
Площадь
54 м 2
Размер дома:
6x6
Этажей:
2
Спален:
2
Санузел:
0
Гараж:
Нет
Баня:
Нет
Терраса:
Нет
Панорамные окна:
Нет
Мастер-спальня:
Нет
О проекте
Дом, в котором хочется растить детей и внуков. 54 м² обеспечивают лёгкость и мобильность в повседневной жизни. В качестве кровли использована профнастила — материал, проверенный временем. Двухэтажная просторная планировка создаёт идеальные условия для жизни всей семьи. В доме предусмотрено 2 спальни, что важно для комфорта.Характеристики
- Общая площадь: 54 м2
- Количество этажей: 2
- Стиль, разновидность: Дома в стиле Русский
- Форма: Прямоугольные дома
- Тип кровли: Дома с двускатной крышей
- Отделка: Без отделки
- Размер: 6x6





