Проект одноэтажного дома Даблби
Дом подходит для:
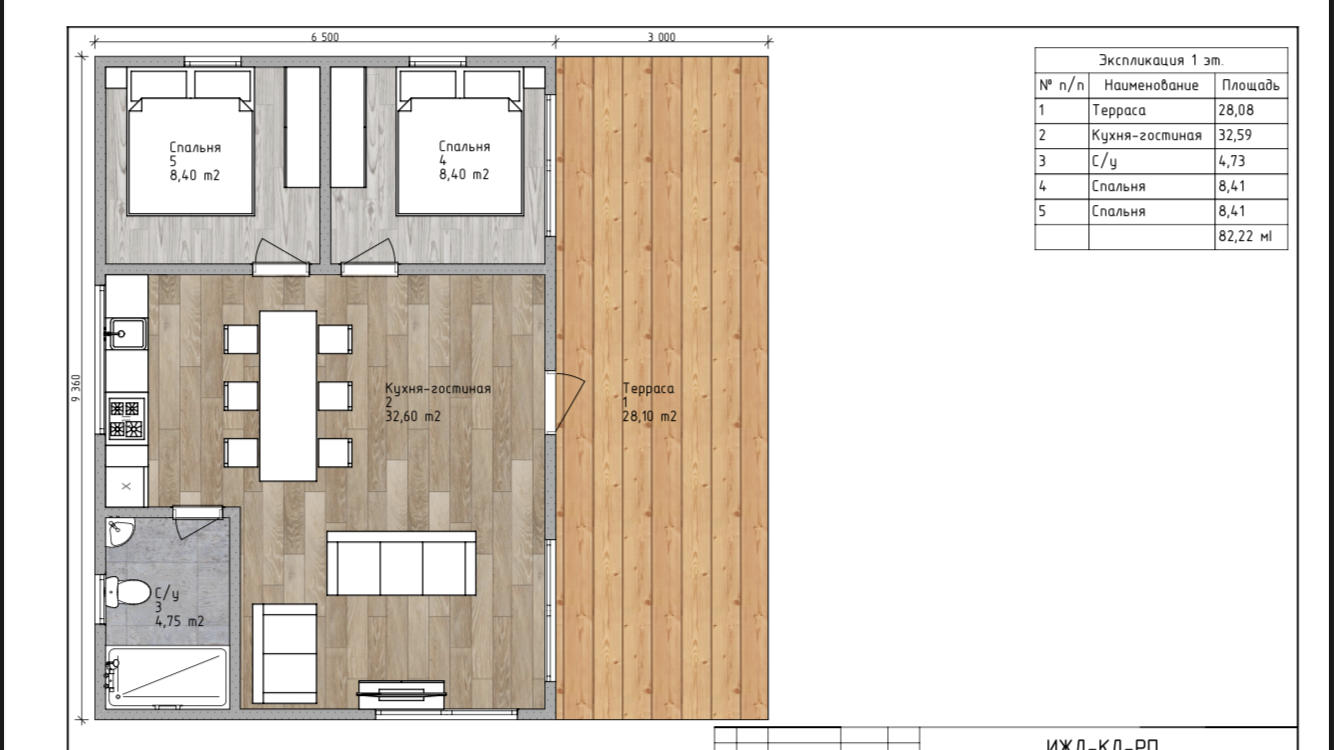
Площадь
82 м 2
Размер дома:
9,3х9,5
Этажей:
1
Спален:
2
Санузел:
1
Гараж:
Нет
Баня:
Нет
Терраса:
Нет
Панорамные окна:
Нет
Мастер-спальня:
Нет
Планировка
Фасады
О проекте
Уютное жилье площадью 82 м² с жилыми 47 м² воплощает идею компактного и комфортного пространства. Каркасная конструкция обеспечивает надежность и энергоэффективность, а продуманная планировка создает ощущение простора. Теплые тона интерьера и натуральные материалы дарят чувство покоя и защищенности. Дом идеален для тех, кто ищет баланс между практичностью и уютом.Характеристики
- Общая площадь: 82 м2
- Жилая площадь: 47 м2
- Количество этажей: 1
- Гараж: нет
- Площадь кровли: 90 м2
- Отделка: Без отделки
- Фундамент: Дома со свайным фундаментом
Материалы и перечень работ
- Фундамент - железобетонные сваи 150x150x3000 мм
- Обвязка фундамента - брус 150x150 мм
- Огнебиозащита обвязки фундамента брусом и половых лаг 1 этажа
- Сетка от грызунов снизу чернового пола
- Половые лаги 1 - 2 этажа - доска 200x50 мм
- Каркас дома - доска 200x50 мм
- Утепление внешних стен и кровли 200 мм ( каменная вата Технониколь )
- Внутренняя отделка : стены - имитация бруса 140x16 мм , потолок вагонка 90 мм
- Цоколь - плитка керамогранит фирмы Уральский гранит
- Кровля металлочерепица фирмы Grand Line ( толщина 0,45 мм )
- Системы вентиляции в санузлах и на кухне - вывод коробов на крышу с установкой вентиляционных грибков
- Окна фирмы Мелке ( Рехау ) профиль 70 мм
- Электромонтажные работы : протяжка электропроводов в гофре внутри дома, установка розеток, подразетников, выключателей
- Отопление : установка электрокотла 12 Квт, монтаж радиаторов, запуск системы
- Водоснабжение : монтаж водонагревателя 100 л, прокладка труб из сшитого полителена, теплоизоляция труб, прокладка канализационных труб
- Внешняя отделка : имитация бруса 190x20 мм с покраской в 2 слоя
- Фундамент - железобетонные сваи 150x150x3000 мм
- Обвязка фундамента - брус 150x150 мм
- Огнебиозащита обвязки фундамента брусом и половых лаг 1 этажа
- Сетка от грызунов снизу чернового пола
- Половые лаги 1 - 2 этажа - доска 200x50 мм
- Каркас дома - доска 200x50 мм
- Утепление внешних стен и кровли 200 мм ( каменная вата Технониколь )
- Внутренняя отделка : стены - имитация бруса 140x16 мм , потолок вагонка 90 мм
- Цоколь - плитка керамогранит фирмы Уральский гранит
- Кровля металлочерепица фирмы Grand Line ( толщина 0,45 мм )
- Системы вентиляции в санузлах и на кухне - вывод коробов на крышу с установкой вентиляционных грибков
- Окна фирмы Мелке ( Рехау ) профиль 70 мм
- Электромонтажные работы : протяжка электропроводов в гофре внутри дома, установка розеток, подразетников, выключателей
- Отопление : установка электрокотла 12 Квт, монтаж радиаторов, запуск системы
- Водоснабжение : монтаж водонагревателя 100 л, прокладка труб из сшитого полителена, теплоизоляция труб, прокладка канализационных труб
- Внешняя отделка : имитация бруса 190x20 мм с покраской в 2 слоя
Что еще входит в стоимость:
Отправьте свои контакты и мы расчитаем вам смету
Скорее всего вам подойдут следующие проекты домов:
Проект одноэтажного дома Пригородный, под ключ, ламинат, двери Экошпон, отделка Hauberk, коммуникации, сантехника.
Семья с двумя детьми
Дом подходит для:
Дом подходит для:
Проект одноэтажного дома Эониум
Семья с двумя детьми
Дом подходит для:
Дом подходит для:
Проект одноэтажного дома Hawi
Семья с двумя детьми
Дом подходит для:
Дом подходит для:










