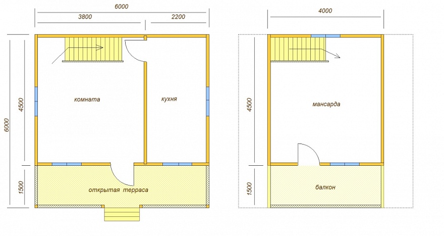
Проект двухэтажного дома Дачный дом №6
Площадь
45 м 2
Размер дома:
4x6
Этажей:
2
Спален:
0
Санузел:
0
Гараж:
Нет
Баня:
Нет
Терраса:
Нет
Панорамные окна:
Нет
Мастер-спальня:
Нет
О проекте
Дом, в котором большие окна не делают интерьер холодным. Площадь 45 м² — оптимум для тех, кто ценит порядок и воздух. Профнастила придаёт дому выразительность и надёжность. Двухэтажная удобная планировка разделяет приватные и общественные зоны. Брус делает дом надёжным при любой погоде.Характеристики
- Общая площадь: 45 м2
- Количество этажей: 2
- Стиль, разновидность: Дома в ином стиле
- Форма: Прямоугольные дома
- Тип кровли: Дома с двускатной крышей
- Отделка: Без отделки
- Размер: 4x6












