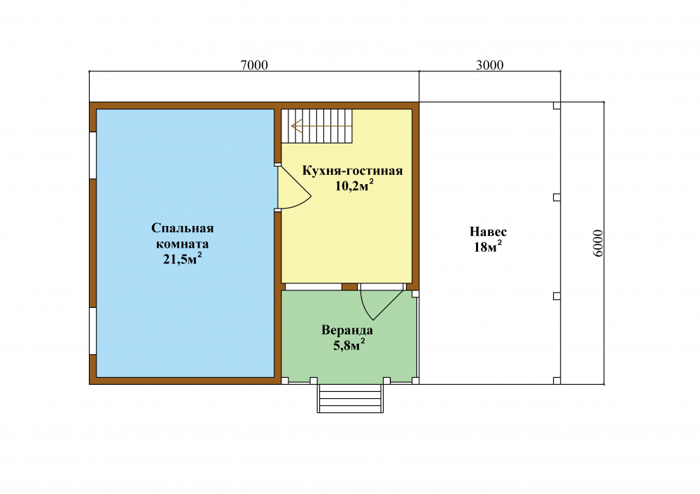
Проект двухэтажного дома Дачный дом 7*6 м с навесом под машину (ДД18)
Площадь
72 м 2
Размер дома:
6x7
Этажей:
2
Спален:
2
Санузел:
0
Гараж:
Нет
Баня:
Нет
Терраса:
Нет
Панорамные окна:
Нет
Мастер-спальня:
Нет
О проекте
Дом, который хранит тепло семейных традиций. Площадь 72 м² — это свобода и контроль одновременно. Это двухэтажная структура, которая создаёт идеальные условия для жизни всей семьи. Наличие 2 спальни удовлетворит запросы семьи с детьми. Профнастила придаёт дому выразительность и надёжность.Характеристики
- Общая площадь: 72 м2
- Количество этажей: 2
- Стиль, разновидность: Дома в ином стиле
- Форма: Прямоугольные дома
- Тип кровли: Дома с двускатной крышей
- Отделка: Без отделки
- Размер: 6x7














