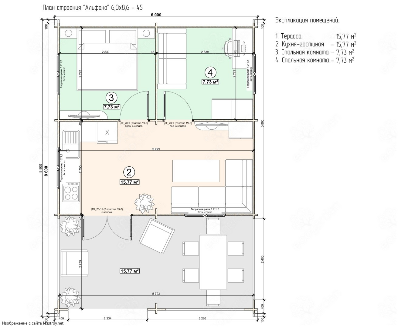
Проект одноэтажного дома Дачный дом Альфано (6,0х8,8х3,6м), площадь 48.4 кв.м., брус 135х45/60/90мм
Площадь
47 м 2
Размер дома:
Этажей:
1
Спален:
1
Санузел:
0
Гараж:
Нет
Баня:
Нет
Терраса:
Нет
Панорамные окна:
Нет
Мастер-спальня:
Нет
О проекте
Проект, где каждый уголок пропитан заботой. 47 м² — дом, где всё работает на вас. Архитектура выполнена в стиле дома в стиле русский. Одноэтажная современная планировка организует пространство максимально эффективно. Количество спален — 1, делая планировку гибкой.Характеристики
- Общая площадь: 47 м2
- Количество этажей: 1
- Стиль, разновидность: Дома в стиле Русский
- Форма: Прямоугольные дома
- Тип кровли: Дома с двускатной крышей
- Отделка: Без отделки












