Проект одноэтажного дома ДАФ001
Дом подходит для:
Площадь
42 м 2
Размер дома:
7x6
Этажей:
1
Спален:
2
Санузел:
1
Гараж:
Нет
Баня:
Нет
Терраса:
Да
Панорамные окна:
Нет
Мастер-спальня:
Нет
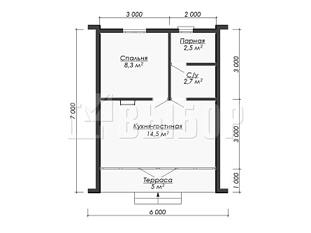
Планировка
Фасады
О проекте
Компактный каркасный дом площадью 42 м² с жилой зоной 29 м² идеален для небольшой семьи. Две спальни и санузел создают уютное гнездышко. Теплые стены и светлые интерьеры наполняют пространство домашним очагом. Отсутствие указанного фундамента компенсируется продуманной конструкцией.Характеристики
- Общая площадь: 42.3 м2
- Жилая площадь: 29 м2
- Количество этажей: 1
- Гараж: нет
- Площадь кровли: 43 м2
- Стиль, разновидность: Дома в стиле A-frame (шалаш)
- Форма: Квадратные дома
- Тип кровли: Дома с двускатной крышей
- Пристрой: Дома с террасой
- Отделка: С черновой отделкой
- Размер: 7x6
Материалы и перечень работ
- В стоимость не входит
- Обвязка (двойная): Брус сухой нестроганый 150 х 150 мм (уложенный на рубероид)
- Черновой пол: Обрезная сухая доска толщиной 20 мм
- Силовой каркас стен и стропил: Брус сухой нестроганый 40 х 150 мм через 590 мм
- Укосины стен: Доска сухая нестроганая 20 х 100 мм
- Силовой каркас перегородок: Брус сухой нестроганый 40 х 100 мм через 590 мм
- Окна (дом, веранда) - по проекту: ПВХ однокамерный (поворотно-откидной) стеклопакет. В комплект не входит москитная сетка, подоконник
- Двери межкомнатные: Глухие филенчатые 2000 х 800 мм на петлях без фурнитуры (замка и ручек)
- Дверь входная: ПВХ 800 х 2000 мм (входная группа-без шпрос) двухкамерный стеклопакет.
- Наличник (дверной, оконный): Прямой камерной сушки сорта «В» шириной 70-90 мм
- В стоимость не входит
- Стены: Плитный утеплитель ROCKWOOL 150 мм
- Фронтоны: Вагонка сухая сорт «В» толщиной 16 мм
- В стоимость не входит
- Обвязка (двойная): Брус сухой нестроганый 150 х 150 мм (уложенный на рубероид)
- Черновой пол: Обрезная сухая доска толщиной 20 мм
- Силовой каркас стен и стропил: Брус сухой нестроганый 40 х 150 мм через 590 мм
- Укосины стен: Доска сухая нестроганая 20 х 100 мм
- Силовой каркас перегородок: Брус сухой нестроганый 40 х 100 мм через 590 мм
- Окна (дом, веранда) - по проекту: ПВХ однокамерный (поворотно-откидной) стеклопакет. В комплект не входит москитная сетка, подоконник
- Двери межкомнатные: Глухие филенчатые 2000 х 800 мм на петлях без фурнитуры (замка и ручек)
- Дверь входная: ПВХ 800 х 2000 мм (входная группа-без шпрос) двухкамерный стеклопакет.
- Наличник (дверной, оконный): Прямой камерной сушки сорта «В» шириной 70-90 мм
- В стоимость не входит
- Стены: Плитный утеплитель ROCKWOOL 150 мм
- Фронтоны: Вагонка сухая сорт «В» толщиной 16 мм
Что еще входит в стоимость:
Отправьте свои контакты и мы расчитаем вам смету
Скорее всего вам подойдут следующие проекты домов:
Дом подходит для:
Дом подходит для:
Дом подходит для:











