Проект одноэтажного дома Даллас
Дом подходит для:
Площадь
99 м 2
Размер дома:
11x14
Этажей:
1
Спален:
3
Санузел:
1
Гараж:
Нет
Баня:
Нет
Терраса:
Да
Панорамные окна:
Нет
Мастер-спальня:
Нет
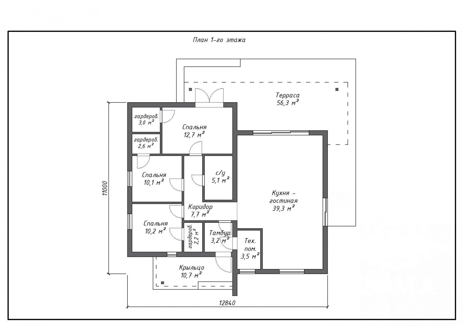
Планировка
Фасады
О проекте
Комфортный дом площадью 99 м² с жилой площадью 72 м² предназначен для семьи с двумя детьми. Каркасные стены обеспечивают тепло и энергоэффективность, а мягкая кровля надежно защищает от внешних воздействий. Интерьеры наполнены светом и простором, создавая атмосферу уюта. Это идеальное решение для тех, кто ценит современность и домашний комфорт.Характеристики
- Общая площадь: 99 м2
- Жилая площадь: 72 м2
- Количество этажей: 1
- Гараж: нет
- Площадь кровли: 104 м2
- Форма: Квадратные дома
- Тип кровли: Дома с плоской крышей
- Пристрой: Дома с террасой
- Отделка: Без отделки
- Фундамент: Дома со свайным фундаментом
Материалы и перечень работ
- Винтовые сваи длиной 2500 мм. под ключ
- Пол: SIP панели 174 мм (OSB-3 12 мм)
- Стены: SIP панели 174 мм (OSB-3 12 мм)
- Перегородки: Каркасная система
- Чердачное перекрытие: Каркасная система
- Кровля: Наплавляемая кровля Технониколь
- В стоимость не входит
- В стоимость не входит
- В стоимость не входит
- Винтовые сваи длиной 2500 мм. под ключ
- Пол: SIP панели 174 мм (OSB-3 12 мм)
- Стены: SIP панели 174 мм (OSB-3 12 мм)
- Перегородки: Каркасная система
- Чердачное перекрытие: Каркасная система
- Кровля: Наплавляемая кровля Технониколь
- В стоимость не входит
- В стоимость не входит
- В стоимость не входит
Что еще входит в стоимость:
Отправьте свои контакты и мы расчитаем вам смету
Скорее всего вам подойдут следующие проекты домов:
Дом подходит для:
Дом подходит для:
Дом подходит для:








