Проект одноэтажного дома ДБ-132
Дом подходит для:
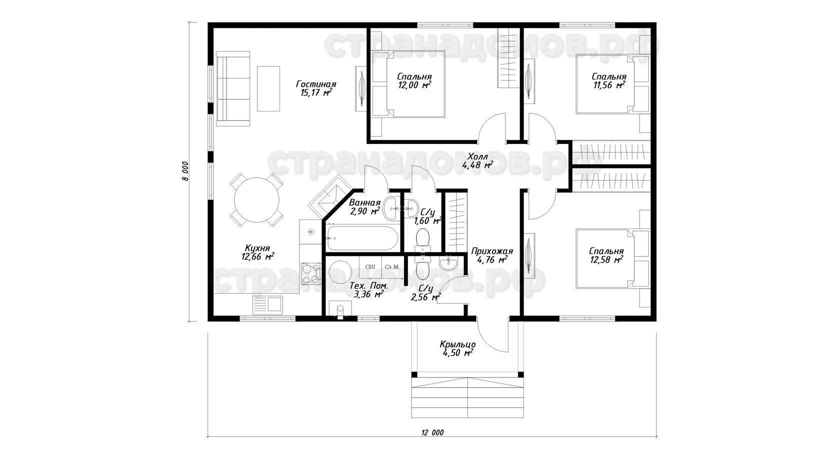
Площадь
83 м 2
Размер дома:
12х8
Этажей:
1
Спален:
3
Санузел:
2
Гараж:
Нет
Баня:
Нет
Терраса:
Нет
Панорамные окна:
Нет
Мастер-спальня:
Нет
Планировка
Фасады
О проекте
Просторный дом площадью 83 м² с жилой зоной 63 м² создан для семьи с одним ребенком. Три спальни и два санузла обеспечивают комфорт и удобство. Брусовая технология гарантирует тепло и энергоэффективность, а естественное освещение наполняет дом светом. Это место, где царит гармония и спокойствие.Характеристики
- Общая площадь: 83 м2
- Жилая площадь: 63 м2
- Количество этажей: 1
- Гараж: нет
- Площадь кровли: 87 м2
- Отделка: Без отделки
Материалы и перечень работ
- В стоимость не входит
- Основание дома;Брус сухой обрезной 150х150 мм, антисептированный;
- Лаги перекрытия пола;Доска сухая обрезная 50х200 мм, антисептированная;
- Черновой пол;Доска сухая обрезная 22х100 мм, антисептированная;
- Каркас наружных стен;Доска сухая обрезная 40х150 мм;
- Каркас внутренних перегородок;Доска сухая обрезная 40х100 (40х150) мм;
- Стропильная система;Доска сухая обрезная 40х150 мм;
- Гидро-ветрозащитная мембарана;Ондутис "SА SMART"
- Контробрешетка;Брусок сухой обрезной 40х50 мм;
- Обрешетка;Доска сухая обрезная 20х100 мм;
- Кровельный материал;Металлочерепица 0,45 мм;
- Окна ПВХ;Двухкамерные, профиль 60 мм;
- Отливы;Металлические 100 мм;
- Дверь входная;Металлическая утепленная, Россия;
- В стоимость не входит
- Отделка фасада;Имитация бруса камерной сушки;
- Обналичка окон, дверей, углов;Доска сухая строганная 20х100 мм;
- В стоимость не входит
- Основание дома;Брус сухой обрезной 150х150 мм, антисептированный;
- Лаги перекрытия пола;Доска сухая обрезная 50х200 мм, антисептированная;
- Черновой пол;Доска сухая обрезная 22х100 мм, антисептированная;
- Каркас наружных стен;Доска сухая обрезная 40х150 мм;
- Каркас внутренних перегородок;Доска сухая обрезная 40х100 (40х150) мм;
- Стропильная система;Доска сухая обрезная 40х150 мм;
- Гидро-ветрозащитная мембарана;Ондутис "SА SMART"
- Контробрешетка;Брусок сухой обрезной 40х50 мм;
- Обрешетка;Доска сухая обрезная 20х100 мм;
- Кровельный материал;Металлочерепица 0,45 мм;
- Окна ПВХ;Двухкамерные, профиль 60 мм;
- Отливы;Металлические 100 мм;
- Дверь входная;Металлическая утепленная, Россия;
- В стоимость не входит
- Отделка фасада;Имитация бруса камерной сушки;
- Обналичка окон, дверей, углов;Доска сухая строганная 20х100 мм;
Что еще входит в стоимость:
Отправьте свои контакты и мы расчитаем вам смету
Скорее всего вам подойдут следующие проекты домов:
Проект одноэтажного дома Дом из бруса 9 x 12 м | проект Д-35
Семья с одним ребенком
Дом подходит для:
Дом подходит для:
Проект одноэтажного дома Дом из профилированного бруса в Красноярске 9х9 один этаж
Семья с одним ребенком
Дом подходит для:
Дом подходит для:
Дом подходит для:









