Проект одноэтажного дома ДБ-135
Дом подходит для:
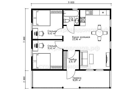
Площадь
66 м 2
Размер дома:
9x9
Этажей:
1
Спален:
2
Санузел:
1
Гараж:
Нет
Баня:
Нет
Терраса:
Нет
Панорамные окна:
Нет
Мастер-спальня:
Нет
Планировка
Фасады
О проекте
Дом площадью 66 м² с жилой зоной 44 м² предлагает комфорт и простор для семьи с одним ребенком. Две спальни и один санузел создают уютное пространство, а брусовая конструкция дарят тепло и тишину. Продуманная планировка делает жизнь здесь удобной и гармоничной. Это дом, где каждая деталь продумана для вашего уюта.Характеристики
- Общая площадь: 66 м2
- Жилая площадь: 44 м2
- Количество этажей: 1
- Гараж: нет
- Площадь кровли: 70 м2
- Отделка: Без отделки
- Размер: 9x9
Материалы и перечень работ
- В стоимость не входит
- Основание дома;Брус сухой обрезной 150х150 мм, антисептированный;
- Лаги перекрытия пола;Доска сухая обрезная 50х200 мм, антисептированная;
- Черновой пол;Доска сухая обрезная 22х100 мм, антисептированная;
- Каркас наружных стен;Доска сухая обрезная 40х150 мм;
- Каркас внутренних перегородок;Доска сухая обрезная 40х100 (40х150) мм;
- Стропильная система;Доска сухая обрезная 40х150 мм;
- Гидро-ветрозащитная мембарана;Ондутис "SА SMART";
- Контробрешетка;Брусок сухой обрезной 40х50 мм;
- Обрешетка;Доска сухая обрезная 20х100 мм;
- Кровельный материал;Металлочерепица 0,45 мм;
- Окна ПВХ;Двухкамерные, профиль 60 мм;
- Отливы;Металлические 100 мм;
- Дверь входная;Металлическая утепленная, Россия;
- Двери межкомнатные филёнчатые;
- В стоимость не входит
- Отделка фасада;Имитация бруса камерной сушки;
- Обналичка окон, дверей, углов;Доска сухая строганная 20х100 мм;
- В стоимость не входит
- Основание дома;Брус сухой обрезной 150х150 мм, антисептированный;
- Лаги перекрытия пола;Доска сухая обрезная 50х200 мм, антисептированная;
- Черновой пол;Доска сухая обрезная 22х100 мм, антисептированная;
- Каркас наружных стен;Доска сухая обрезная 40х150 мм;
- Каркас внутренних перегородок;Доска сухая обрезная 40х100 (40х150) мм;
- Стропильная система;Доска сухая обрезная 40х150 мм;
- Гидро-ветрозащитная мембарана;Ондутис "SА SMART";
- Контробрешетка;Брусок сухой обрезной 40х50 мм;
- Обрешетка;Доска сухая обрезная 20х100 мм;
- Кровельный материал;Металлочерепица 0,45 мм;
- Окна ПВХ;Двухкамерные, профиль 60 мм;
- Отливы;Металлические 100 мм;
- Дверь входная;Металлическая утепленная, Россия;
- Двери межкомнатные филёнчатые;
- В стоимость не входит
- Отделка фасада;Имитация бруса камерной сушки;
- Обналичка окон, дверей, углов;Доска сухая строганная 20х100 мм;
Что еще входит в стоимость:
Отправьте свои контакты и мы расчитаем вам смету
Скорее всего вам подойдут следующие проекты домов:
Дом подходит для:
Дом подходит для:
Дом подходит для:











