Проект двухэтажного дома ДБ-88
Площадь
335 м 2
Размер дома:
Этажей:
2
Спален:
3
Санузел:
0
Гараж:
Нет
Баня:
Нет
Терраса:
Нет
Панорамные окна:
Нет
Мастер-спальня:
Нет
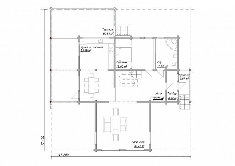
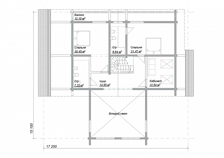
О проекте
Просторный двухэтажный дом площадью 335 м² с тремя спальнями создан для тех, кто ценит пространство. Брус в отделке стен гарантирует экологичность и надежность. Профилированный брус придает дому особую эстетику. Просторные помещения и удобная планировка делают проживание комфортным.Характеристики
- Общая площадь: 335 м2
- Количество этажей: 2
- Стиль, разновидность: Дома в ином стиле
- Форма: Прямоугольные дома
- Тип кровли: Дома с многощипцовой крышей
- Отделка: Без отделки
Отправьте свои контакты и мы расчитаем вам смету
Скорее всего вам подойдут следующие проекты домов:
Дом подходит для:
Дом подходит для:
Дом подходит для:













