Проект двухэтажного дома ДБ-89
Дом подходит для:
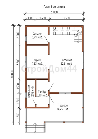
Площадь
95 м 2
Размер дома:
6х10
Этажей:
2
Спален:
1
Санузел:
1
Гараж:
Нет
Баня:
Нет
Терраса:
Нет
Панорамные окна:
Нет
Мастер-спальня:
Нет
Планировка
Фасады
О проекте
Двухэтажный дом из профилированного бруса площадью 95 м² предлагает простор для семьи. Жилая зона в 56 м² наполнена светом и теплом натурального дерева. Одна спальня и санузел создают уютные условия для проживания. Качественная конструкция и гармоничные пропорции подчеркивают надежность этого жилья.Характеристики
- Общая площадь: 95 м2
- Жилая площадь: 56 м2
- Количество этажей: 2
- Гараж: нет
- Площадь кровли: 97 м2
- Форма: Квадратные дома
- Тип кровли: Дома с двускатной крышей
- Пристрой: Дома с балконом
- Отделка: Без отделки
Материалы и перечень работ
- В стоимость не входит
- Основные стены дома: Брус 145х195мм
- Внутренние перегородки первого и второго этажа: Брус 150х100 мм
- Лаги пола и потолка: Брус 150х100 мм (с шагом 0.6 м)
- Фронтоны крыши: Брус 145х195 мм
- Черновой пол первого этажа: Обрезная доска 25х150 мм
- Стропильная система: Обрезная доска 50х150 мм (с шагом 0.6 м)
- Обрешётка крыши: Обрезная доска 25х150 мм
- Расходные материалы: Джутовое волокно, берёзовые нагеля, гвозди, рубероид, антисептик на нижний венец
- В стоимость не входит
- В стоимость не входит
- В стоимость не входит
- В стоимость не входит
- Основные стены дома: Брус 145х195мм
- Внутренние перегородки первого и второго этажа: Брус 150х100 мм
- Лаги пола и потолка: Брус 150х100 мм (с шагом 0.6 м)
- Фронтоны крыши: Брус 145х195 мм
- Черновой пол первого этажа: Обрезная доска 25х150 мм
- Стропильная система: Обрезная доска 50х150 мм (с шагом 0.6 м)
- Обрешётка крыши: Обрезная доска 25х150 мм
- Расходные материалы: Джутовое волокно, берёзовые нагеля, гвозди, рубероид, антисептик на нижний венец
- В стоимость не входит
- В стоимость не входит
- В стоимость не входит
Что еще входит в стоимость:
Отправьте свои контакты и мы расчитаем вам смету
Скорее всего вам подойдут следующие проекты домов:
Дом подходит для:
Дом подходит для:
Дом подходит для:














