Проект двухэтажного дома ДЧ-6
Дом подходит для:
Площадь
150 м 2
Размер дома:
12x12
Этажей:
2
Спален:
3
Санузел:
2
Гараж:
Нет
Баня:
Нет
Терраса:
Да
Панорамные окна:
Нет
Мастер-спальня:
Нет
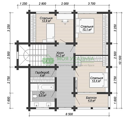
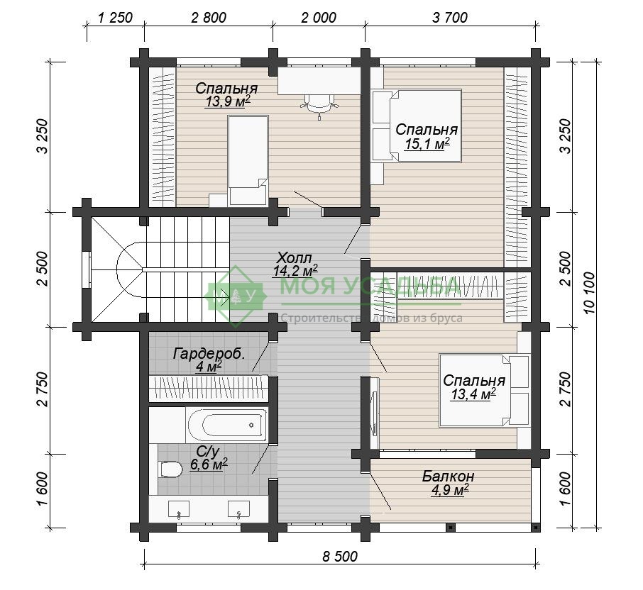
Планировка
Фасады
О проекте
Профилированный брус в этом доме площадью 150 м² придает ему особую добротность и экологичность. Жилая площадь 123 м² позволяет комфортно разместиться семье с двумя детьми. Просторные комнаты наполнены светом и теплом, создавая гармоничную атмосферу. Дом сочетает в себе традиции и современные решения.Характеристики
- Общая площадь: 150 м2
- Жилая площадь: 123 м2
- Количество этажей: 2
- Гараж: нет
- Площадь кровли: 157 м2
- Форма: Квадратные дома
- Тип кровли: Дома с двускатной крышей
- Пристрой: Дома с террасой
- Отделка: Без отделки
- Размер: 12x12
Материалы и перечень работ
- В стоимость не входит
- Внешние стены: Профилированный брус 140х140мм
- Внутренние стены на первом и втором этаже: Профилированный брус 140х140мм
- Лаги пола и потолка с шагом: 580мм 100х150мм
- Стропильная система с шагом: 580мм 50х150мм
- Обрешетка крыши: Доска 25х100мм(25х150мм)
- Вынос свесов кровли по пириметру: 600мм
- Межвенцовый утеплитель: Джут/льноватин/политерм
- Временная кровля Рубероид
- В стоимость не входит
- В стоимость не входит
- Облицовочный материал фронтонов: Профилированный брус 140х140мм
- В стоимость не входит
- Внешние стены: Профилированный брус 140х140мм
- Внутренние стены на первом и втором этаже: Профилированный брус 140х140мм
- Лаги пола и потолка с шагом: 580мм 100х150мм
- Стропильная система с шагом: 580мм 50х150мм
- Обрешетка крыши: Доска 25х100мм(25х150мм)
- Вынос свесов кровли по пириметру: 600мм
- Межвенцовый утеплитель: Джут/льноватин/политерм
- Временная кровля Рубероид
- В стоимость не входит
- В стоимость не входит
- Облицовочный материал фронтонов: Профилированный брус 140х140мм
Что еще входит в стоимость:
Отправьте свои контакты и мы расчитаем вам смету
Скорее всего вам подойдут следующие проекты домов:
Дом подходит для:
Дом подходит для:
Дом подходит для:








