Проект одноэтажного дома Denver
Дом подходит для:
Площадь
45 м 2
Размер дома:
6x6
Этажей:
1
Спален:
1
Санузел:
1
Гараж:
Нет
Баня:
Нет
Терраса:
Да
Панорамные окна:
Нет
Мастер-спальня:
Нет
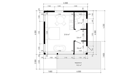
Планировка
Фасады
О проекте
Современный каркасный дом площадью 45 м² - образец энергоэффективного жилья для небольшой семьи. 30 м² жилого пространства организованы с умом, создавая ощущение защищенности и уюта. Фальцевая кровля придает экстерьеру сдержанную элегантность, а продуманная планировка делает дом по-настоящему удобным. Это пространство, где комфорт сочетается с практичностью.Характеристики
- Общая площадь: 45 м2
- Жилая площадь: 30 м2
- Количество этажей: 1
- Гараж: нет
- Площадь кровли: 46 м2
- Форма: Квадратные дома
- Тип кровли: Дома с плоской крышей
- Пристрой: Дома с верандой
- Отделка: Под ключ
- Отделка фасада: Дома с отделкой имитацией бруса
- Размер: 6x6
- Фундамент: Дома со свайным фундаментом
Материалы и перечень работ
- Железобетонные сваи 150х150х3000
- Обвязка
- Перекрытие пола и крыши Доска камерной сушки хвойных пород 190х45
- Утепление 200 мм Технониколь 50 мм
- Сетка сварная металлическая Защита от грызунов
- Доска камерной сушки хвойных пород 140х45
- Черновой пол Фанера или влагостойкий Quick deck (Квик Дек)
- Клик-фальц или Профнастил (профлист)
- Водосточная система (пластик)
- Окна ПВХ KBE или аналог профиль 70мм; двухсторонняя ламинация
- Дверь входная с терморазрывом от производителя РФ . Двери межкомнатные (предоставляем на выбор 3 варианта).
- Электрический теплый пол с привязкой к мебели по всей площади дома
- Монтаж электрики в противопожарной гофре.
- Силовой щит с DIF автоматами.
- Разводка труб водоснабжения скрытым типом, сшитый полиэтилен REHAU - до 8 точек.
- Разводка труб канализации скрытым типом. До 4 точек
- Использование современных масел для древесины. Окрашенная в цеховых условиях имитация бруса 20х145х6000 или планкен, возможна замена на Кликфальц
- Декоративная подсветка.
- Железобетонные сваи 150х150х3000
- Обвязка
- Перекрытие пола и крыши Доска камерной сушки хвойных пород 190х45
- Утепление 200 мм Технониколь 50 мм
- Сетка сварная металлическая Защита от грызунов
- Доска камерной сушки хвойных пород 140х45
- Черновой пол Фанера или влагостойкий Quick deck (Квик Дек)
- Клик-фальц или Профнастил (профлист)
- Водосточная система (пластик)
- Окна ПВХ KBE или аналог профиль 70мм; двухсторонняя ламинация
- Дверь входная с терморазрывом от производителя РФ . Двери межкомнатные (предоставляем на выбор 3 варианта).
- Электрический теплый пол с привязкой к мебели по всей площади дома
- Монтаж электрики в противопожарной гофре.
- Силовой щит с DIF автоматами.
- Разводка труб водоснабжения скрытым типом, сшитый полиэтилен REHAU - до 8 точек.
- Разводка труб канализации скрытым типом. До 4 точек
- Использование современных масел для древесины. Окрашенная в цеховых условиях имитация бруса 20х145х6000 или планкен, возможна замена на Кликфальц
- Декоративная подсветка.
Что еще входит в стоимость:
Отправьте свои контакты и мы расчитаем вам смету
Скорее всего вам подойдут следующие проекты домов:
Дом подходит для:
Дом подходит для:
Проект одноэтажного дома Каркасный дом Барнхаус 7х7.5. Проект ДК-117 «Марс
Семья с одним ребенком
Дом подходит для:
Дом подходит для:














