Ваш город:

Проект двухэтажного дома Деревянный коттедж: проект - Каскад

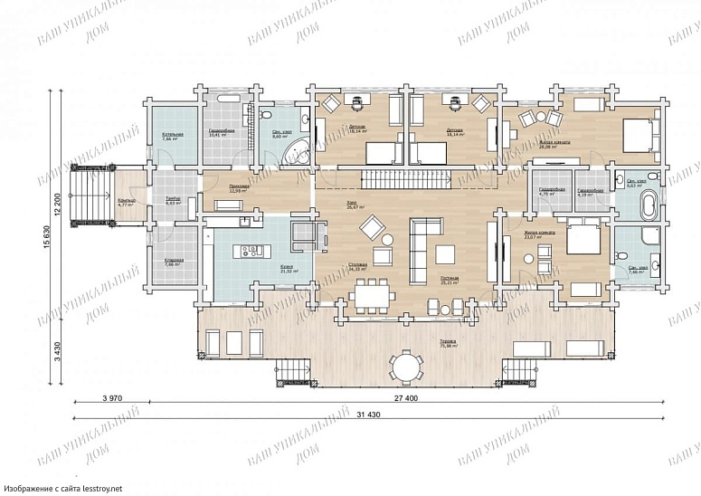
Площадь: 422 м2
Размер: 17x18
Дом подходит для:
Для большой семьи
Этажей:
2
Стены:
Кровля:
Металлочерепица
Цена:
Оставить заявку
Площадь
422 м 2
Размер дома:
17x18
Этажей:
2
Спален:
4
Санузел:
0
Гараж:
Нет
Баня:
Нет
Терраса:
Нет
Панорамные окна:
Нет
Мастер-спальня:
Нет
О проекте
Этот брусовый дом площадью 422 м² — настоящий просторный особняк. Большие окна и высокие потолки создают ощущение простора. Натуральные материалы добавляют интерьеру тепла и элегантности. Идеальный дом для большой семьи, ценящей комфорт и стиль.

Характеристики
  • Общая площадь: 422 м2
  • Количество этажей: 2
  • Стиль, разновидность: Дома в стиле Кантри
  • Форма: Широкие дома
  • Тип кровли: Дома с многощипцовой крышей
  • Отделка: Без отделки
  • Размер: 17x18
Отправьте свои контакты и мы расчитаем вам смету
Прикрепить документ
Скорее всего вам подойдут следующие проекты домов:
Добавить к сравнению
Добавить в избранное
Изображение
Изображение
Изображение
Изображение
Изображение
Дом подходит для:
Семья с двумя детьми
Добавить к сравнению
Добавить в избранное
Изображение
Изображение
Изображение
Дом подходит для:
Для большой семьи
Добавить к сравнению
Добавить в избранное
Изображение
Изображение
Изображение
Изображение
Изображение
Дом подходит для:
Семья с двумя детьми