Ваш город:

Проект одноэтажного дома ДКБ-101

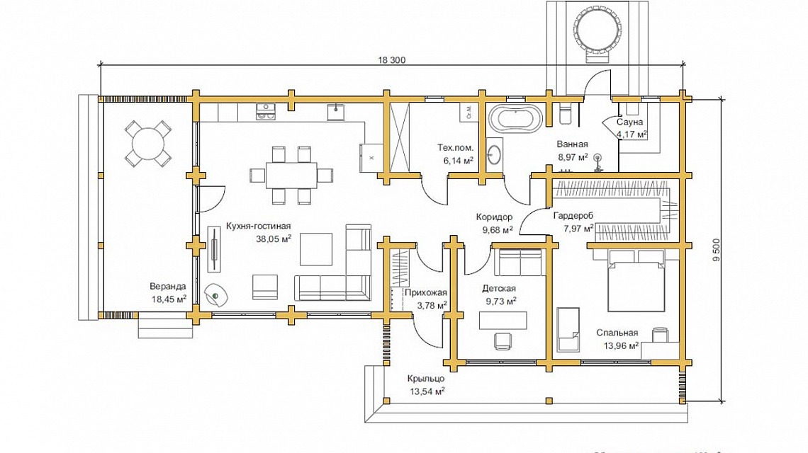
Площадь: 101 м2
Размер: 9,5х18,3
Дом подходит для:
Семья с одним ребенком
Этажей:
1
Стены:
Кровля:
Профнастил
Цена:
Оставить заявку
Площадь
101 м 2
Размер дома:
9,5х18,3
Этажей:
1
Спален:
2
Санузел:
1
Гараж:
Нет
Баня:
Нет
Терраса:
Да
Панорамные окна:
Нет
Мастер-спальня:
Нет
Фасады
О проекте
Уютный дом из клееного бруса площадью 101 м² с жилыми 66 м², где каждая деталь продумана для комфорта. Деревянные стены дарят тепло и спокойствие, а профнастил дополняет современный облик. Небольшие размеры делают дом удобным для жизни, а продуманная планировка создает ощущение простора. Идеальный вариант для семьи с одним ребенком.

Характеристики
  • Общая площадь: 101 м2
  • Жилая площадь: 66 м2
  • Количество этажей: 1
  • Гараж: нет
  • Площадь кровли: 109 м2
  • Форма: Квадратные дома
  • Тип кровли: Дома с многощипцовой крышей
  • Пристрой: Дома с верандой
  • Отделка: С черновой отделкой
  • Фундамент: Дома с столбчатым фундаментом
Материалы и перечень работ
  • Заполнение столбов - бетон(сертифицированный);
  • Армирование столбов – композитная арматура
  • Закладные пластины металлические
  • Обвязка брусом(антисептированный);
  • Геодезические работы: разбивка осей свай, шаг 2–2,5 м;
  • Стеновой комлект дома - сухой , микроволновая сушка, хвойные породы (сосна, ель)
  • Антисептирование межвенцовое - антисептик "Сайтекс"
  • Разработка проекта в программе К3-коттедж.
  • Монтаж нагелей (шканты) - диам 25 мм, сухой березовый
  • Уплотнитель для закладного бруса - Джут
  • Монтаж стропильной системы - 50х200 мм, хвойные породы
  • Монтаж межстропильных закладных досок - 50х200 мм, хвойные породы
  • Монтаж контр бруса подобрешёточного - 30х50 мм. хвойные породы.
  • Монтаж кровли оцинкованный профлист, 0,45 мм, цвет на выбор.
  • Монтаж доборных элементов кровли - конек
  • В стоимость не входит
  • В стоимость не входит
  • В стоимость не входит
  • Заполнение столбов - бетон(сертифицированный);
  • Армирование столбов – композитная арматура
  • Закладные пластины металлические
  • Обвязка брусом(антисептированный);
  • Геодезические работы: разбивка осей свай, шаг 2–2,5 м;
  • Стеновой комлект дома - сухой , микроволновая сушка, хвойные породы (сосна, ель)
  • Антисептирование межвенцовое - антисептик "Сайтекс"
  • Разработка проекта в программе К3-коттедж.
  • Монтаж нагелей (шканты) - диам 25 мм, сухой березовый
  • Уплотнитель для закладного бруса - Джут
  • Монтаж стропильной системы - 50х200 мм, хвойные породы
  • Монтаж межстропильных закладных досок - 50х200 мм, хвойные породы
  • Монтаж контр бруса подобрешёточного - 30х50 мм. хвойные породы.
  • Монтаж кровли оцинкованный профлист, 0,45 мм, цвет на выбор.
  • Монтаж доборных элементов кровли - конек
  • В стоимость не входит
  • В стоимость не входит
  • В стоимость не входит
Что еще входит в стоимость:
Фото и видеоотчет
Отправьте свои контакты и мы расчитаем вам смету
Прикрепить документ
Скорее всего вам подойдут следующие проекты домов:
Добавить к сравнению
Добавить в избранное
Изображение
Изображение
Изображение
Изображение
Дом подходит для:
Семья с двумя детьми
Добавить к сравнению
Добавить в избранное
Изображение
Изображение
Изображение
Изображение
Изображение
Дом подходит для:
Семья с двумя детьми
Добавить к сравнению
Добавить в избранное
Изображение
Изображение
Изображение
Изображение
Изображение
Дом подходит для:
Семья с одним ребенком