Проект одноэтажного дома ДКБ-99
Дом подходит для:
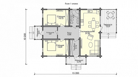
Площадь
99 м 2
Размер дома:
10,2х15,2
Этажей:
1
Спален:
2
Санузел:
1
Гараж:
Нет
Баня:
Нет
Терраса:
Да
Панорамные окна:
Нет
Мастер-спальня:
Нет
Планировка
Фасады
О проекте
Компактный дом из клееного бруса площадью 99 м² с жилыми 63 м², где уют и практичность идут рука об руку. Деревянные стены создают атмосферу тепла, а профнастил на крыше подчеркивает надежность. Небольшие размеры делают дом удобным для жизни, а продуманные детали интерьера добавляют комфорта. Отличный выбор для семьи с одним ребенком.Характеристики
- Общая площадь: 99 м2
- Жилая площадь: 63 м2
- Количество этажей: 1
- Гараж: нет
- Площадь кровли: 106 м2
- Форма: Квадратные дома
- Тип кровли: Дома с четырехскатной крышей (вальмовой)
- Пристрой: Дома с верандой
- Отделка: С черновой отделкой
- Фундамент: Дома с столбчатым фундаментом
Материалы и перечень работ
- Армирование столбов – композитная арматура
- Заполнение столбов - бетон(сертифицированный);
- Геодезические работы: разбивка осей свай, шаг 2–2,5 м;
- Изготовление опалубки свай 250х250 мм.
- Монтаж подкосов - брус 50х50 мм., хвойные породы;
- Стеновой комлект дома - сухой , микроволновая сушка, хвойные породы (сосна, ель)
- Антисептирование межвенцовое - антисептик "Сайтекс"
- Монтаж нагелей (шканты) - диам 25 мм, сухой березовый
- Монтаж закладного бруса в оконные проемы - брус 50х50 мм, хвойные породы
- Уплотнитель для закладного бруса - Джут
- Монтаж стропильной системы - 50х200 мм, хвойные породы
- Монтаж крепежных пластин стропил
- Монтаж скользящей опоры для стропил
- Монтаж обрещётника - 25х150 мм. хвойные породы. (шаг 350 мм.)
- Монтаж кровли оцинкованный профлист, 0,45 мм, цвет на выбор.
- В стоимость не входит
- В стоимость не входит
- В стоимость не входит
- Армирование столбов – композитная арматура
- Заполнение столбов - бетон(сертифицированный);
- Геодезические работы: разбивка осей свай, шаг 2–2,5 м;
- Изготовление опалубки свай 250х250 мм.
- Монтаж подкосов - брус 50х50 мм., хвойные породы;
- Стеновой комлект дома - сухой , микроволновая сушка, хвойные породы (сосна, ель)
- Антисептирование межвенцовое - антисептик "Сайтекс"
- Монтаж нагелей (шканты) - диам 25 мм, сухой березовый
- Монтаж закладного бруса в оконные проемы - брус 50х50 мм, хвойные породы
- Уплотнитель для закладного бруса - Джут
- Монтаж стропильной системы - 50х200 мм, хвойные породы
- Монтаж крепежных пластин стропил
- Монтаж скользящей опоры для стропил
- Монтаж обрещётника - 25х150 мм. хвойные породы. (шаг 350 мм.)
- Монтаж кровли оцинкованный профлист, 0,45 мм, цвет на выбор.
- В стоимость не входит
- В стоимость не входит
- В стоимость не входит
Что еще входит в стоимость:
Отправьте свои контакты и мы расчитаем вам смету
Скорее всего вам подойдут следующие проекты домов:
Дом подходит для:
Проект одноэтажного дома Одноэтажный дом из клееного бруса Вьюга-111
Семья с двумя детьми
Дом подходит для:
Дом подходит для:
Проект одноэтажного дома Дом из клеёного бруса 205мм Талеон
Семья с одним ребенком
Дом подходит для:
Дом подходит для:













