Проект одноэтажного дома ДМ-174
Дом подходит для:
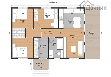
Площадь
87 м 2
Размер дома:
7х10
Этажей:
1
Спален:
3
Санузел:
1
Гараж:
Нет
Баня:
Нет
Терраса:
Нет
Панорамные окна:
Нет
Мастер-спальня:
Нет
Планировка
Характеристики
- Общая площадь: 87 м2
- Жилая площадь: 68 м2
- Количество этажей: 1
- Гараж: нет
- Площадь кровли: 92 м2
- Отделка: Под ключ
- Фундамент: Дома со свайным фундаментом
Материалы и перечень работ
- Вид фундамента: Винтовые сваи
- Обвязочный брус Сухой брус 150х150мм.
- Черновые полы Сухая доска 25х100мм.
- Стены наружные Сухой профилированный брус 150х150мм
- Перегородки внутренние Сухой профилированный брус 100х150мм
- Крепление бруса Деревянный нагель (березовый)
- Обрешетка Сухая доска 25х100мм.
- Контробрешетка Сухой брусок 50х50мм
- Кровельное покрытие Металлочерепица Супермонтеррей
- Влаго-ветрозащита Ондутис Smart A 100
- Пароизоляционная пленка Ондутис Smart B
- Оконные блоки и дверь на террасу Двухкамерные стеклопакеты ПВХ
- Аксессуары к оконным блокам Отливы внешние
- Входные дверные блоки Металлическая Россия
- Вентиляция Приточные клапана на Кухне, Сан. узле
- Электропроводка Розетки, выключатели, лампы, распределительный щиток
- Контробрешетка на фронтоны Сухая рейка 25х50мм
- Фронтоны Имитация бруса, карельский профиль
- Свесы и углы, наличники Евровагонка
- Вид фундамента: Винтовые сваи
- Обвязочный брус Сухой брус 150х150мм.
- Черновые полы Сухая доска 25х100мм.
- Стены наружные Сухой профилированный брус 150х150мм
- Перегородки внутренние Сухой профилированный брус 100х150мм
- Крепление бруса Деревянный нагель (березовый)
- Обрешетка Сухая доска 25х100мм.
- Контробрешетка Сухой брусок 50х50мм
- Кровельное покрытие Металлочерепица Супермонтеррей
- Влаго-ветрозащита Ондутис Smart A 100
- Пароизоляционная пленка Ондутис Smart B
- Оконные блоки и дверь на террасу Двухкамерные стеклопакеты ПВХ
- Аксессуары к оконным блокам Отливы внешние
- Входные дверные блоки Металлическая Россия
- Вентиляция Приточные клапана на Кухне, Сан. узле
- Электропроводка Розетки, выключатели, лампы, распределительный щиток
- Контробрешетка на фронтоны Сухая рейка 25х50мм
- Фронтоны Имитация бруса, карельский профиль
- Свесы и углы, наличники Евровагонка
Что еще входит в стоимость:
Отправьте свои контакты и мы расчитаем вам смету
Скорее всего вам подойдут следующие проекты домов:
Дом подходит для:
Проект одноэтажного дома Дом из бруса ДБ-63 проект Бюджетный
Семья с одним ребенком
Дом подходит для:
Дом подходит для:
Дом подходит для:














