Проект одноэтажного дома ДО-111
Дом подходит для:
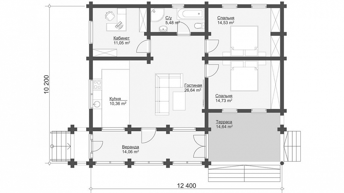
Площадь
111 м 2
Размер дома:
10,2х12,4
Этажей:
1
Спален:
2
Санузел:
1
Гараж:
Нет
Баня:
Нет
Терраса:
Да
Панорамные окна:
Нет
Мастер-спальня:
Нет
Планировка
Фасады
О проекте
Дом из бревна площадью 111 м² с жилыми 78 м², где традиции встречаются с комфортом. Деревянные стены создают атмосферу тепла, а профнастил дополняет природный облик. Просторные комнаты с панорамными окнами наполнены светом, а продуманные детали интерьера добавляют уюта. Идеальное место для тех, кто ценит естественность и гармонию.Характеристики
- Общая площадь: 111 м2
- Жилая площадь: 78 м2
- Количество этажей: 1
- Гараж: нет
- Площадь кровли: 119 м2
- Форма: Квадратные дома
- Тип кровли: Дома с четырехскатной крышей (вальмовой)
- Пристрой: Дома с террасой
- Отделка: С черновой отделкой
- Фундамент: Дома с столбчатым фундаментом
Материалы и перечень работ
- Изготовление опалубки свай 250х250 мм.
- Монтаж подкосов - брус 50х50 мм., хвойные породы;
- Гидроизоляция опалубки - полиэтилен
- Армирование столбов – композитная арматура
- Заполнение столбов - бетон(сертифицированный);
- Стеновой комлект дома - сухой , микроволновая сушка, хвойные породы (сосна, ель)
- Антисептирование межвенцовое - антисептик "Сайтекс"
- Разработка проекта в программе К3-коттедж.
- Монтаж утеплителя межвенцового -2 полосы "Аватерм",
- Монтаж утеплителя чашек - Джут,
- Монтаж стропильной системы - 50х200 мм, хвойные породы
- Монтаж крепежных пластин стропил
- Монтаж межстропильных закладных досок - 50х200 мм, хвойные породы
- Монтаж скользящей опоры для стропил
- Монтаж кровли оцинкованный профлист, 0,45 мм, цвет на выбор.
- В стоимость не входит
- В стоимость не входит
- В стоимость не входит
- Изготовление опалубки свай 250х250 мм.
- Монтаж подкосов - брус 50х50 мм., хвойные породы;
- Гидроизоляция опалубки - полиэтилен
- Армирование столбов – композитная арматура
- Заполнение столбов - бетон(сертифицированный);
- Стеновой комлект дома - сухой , микроволновая сушка, хвойные породы (сосна, ель)
- Антисептирование межвенцовое - антисептик "Сайтекс"
- Разработка проекта в программе К3-коттедж.
- Монтаж утеплителя межвенцового -2 полосы "Аватерм",
- Монтаж утеплителя чашек - Джут,
- Монтаж стропильной системы - 50х200 мм, хвойные породы
- Монтаж крепежных пластин стропил
- Монтаж межстропильных закладных досок - 50х200 мм, хвойные породы
- Монтаж скользящей опоры для стропил
- Монтаж кровли оцинкованный профлист, 0,45 мм, цвет на выбор.
- В стоимость не входит
- В стоимость не входит
- В стоимость не входит
Что еще входит в стоимость:
Отправьте свои контакты и мы расчитаем вам смету
Скорее всего вам подойдут следующие проекты домов:
Проект одноэтажного дома Проект одноэтажного дома из клееного бруса Пятый угол -115
Семья с одним ребенком
Дом подходит для:
Дом подходит для:
Проект одноэтажного дома Проект гостевого дома в таёжном стиле СЛОБОДА, диаметр 380 мм
Семья с одним ребенком
Дом подходит для:
Дом подходит для:
Дом подходит для:









