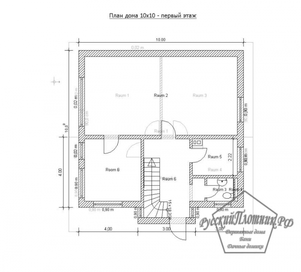
Проект одноэтажного дома Дом 10х10 из бруса с мансардой
Площадь
206 м 2
Размер дома:
10x10
Этажей:
1
Спален:
0
Санузел:
0
Гараж:
Нет
Баня:
Нет
Терраса:
Нет
Панорамные окна:
Нет
Мастер-спальня:
Нет
О проекте
Здесь даже старые вещи обретают новую жизнь. Дом с 206 м² даёт ощущение гармонии. Дом спроектирован в духе дома в классическом стиле. Конструкция из Брус обеспечивает прочность и долговечность. Одноэтажная грамотная планировка разграничивает спальные и дневные помещения.Характеристики
- Общая площадь: 206 м2
- Количество этажей: 1
- Стиль, разновидность: Дома в ином стиле
- Тип кровли: Дома с иной крышей
- Отделка: Без отделки
- Размер: 10x10
Отправьте свои контакты и мы расчитаем вам смету
Скорее всего вам подойдут следующие проекты домов:
Проект одноэтажного дома №96
Семья с одним ребенком
Дом подходит для:
Дом подходит для:




