Проект одноэтажного дома Дом 135 кв.м.
Площадь
135 м 2
Размер дома:
11x13
Этажей:
1
Спален:
3
Санузел:
0
Гараж:
Нет
Баня:
Нет
Терраса:
Нет
Панорамные окна:
Нет
Мастер-спальня:
Нет
О проекте
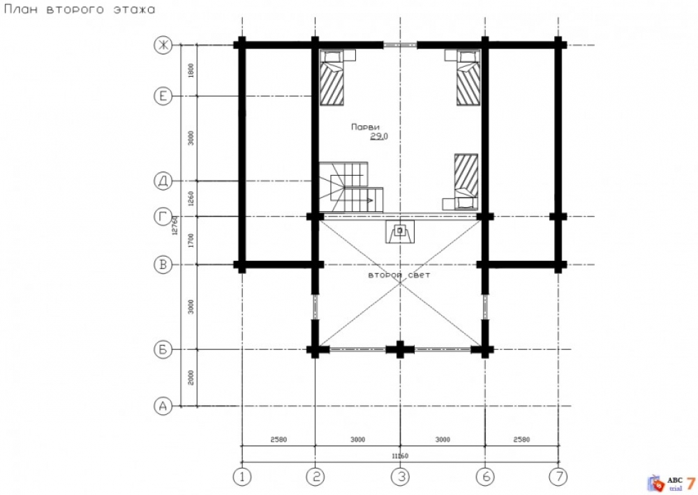
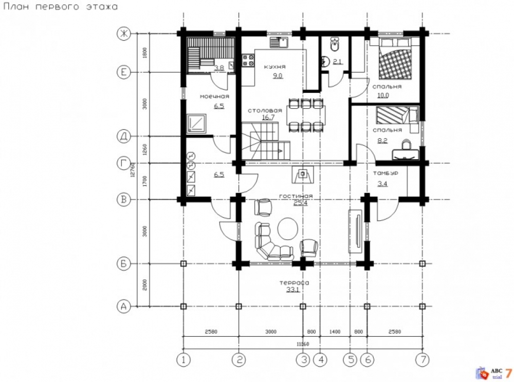
Дом, в котором приятно встречать рассвет. Площадь 135 м² — подходящий вариант для молодых семей. Брус делает дом надёжным при любой погоде. Проект включает 3 спальни — удобно для семьи. металлочерепица придаёт дому выразительность и надёжность.Характеристики
- Общая площадь: 135 м2
- Количество этажей: 1
- Стиль, разновидность: Дома в стиле Модерн
- Форма: Прямоугольные дома
- Тип кровли: Дома с шатровой крышей
- Отделка: Без отделки
- Размер: 11x13
Отправьте свои контакты и мы расчитаем вам смету
Скорее всего вам подойдут следующие проекты домов:
Дом подходит для:
Дом подходит для:
Дом подходит для:













