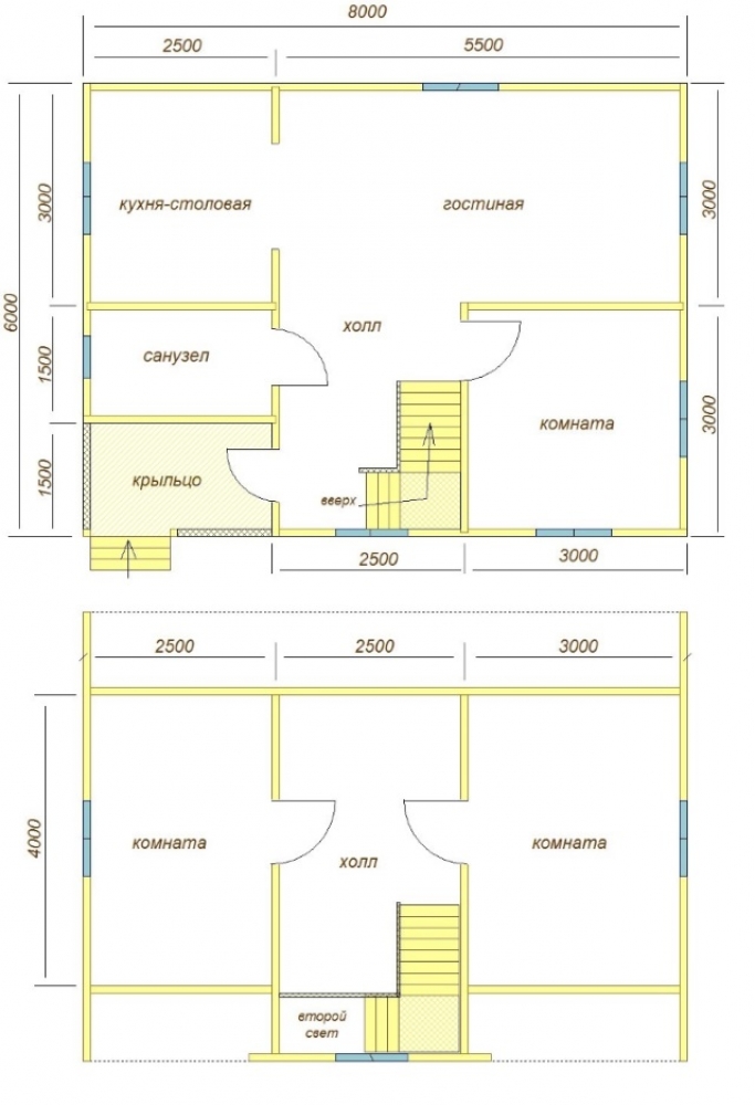
Проект двухэтажного дома Дом 6х8 с тремя фронтонами (Д-37)
Площадь
80 м 2
Размер дома:
6x8
Этажей:
2
Спален:
4
Санузел:
0
Гараж:
Нет
Баня:
Нет
Терраса:
Нет
Панорамные окна:
Нет
Мастер-спальня:
Нет
О проекте
Интерьеры, которые хочется рассматривать снова и снова. 80 м², где всё логично, удобно и на месте. В доме предусмотрено 4 спальни, что важно для комфорта. Двухэтажная эргономичная планировка создаёт идеальные условия для жизни всей семьи. Материал кровли — ондулин, что добавляет зданию индивидуальность.Характеристики
- Общая площадь: 80 м2
- Количество этажей: 2
- Стиль, разновидность: Дома в стиле Русский
- Форма: Прямоугольные дома
- Тип кровли: Дома с двускатной крышей
- Отделка: Без отделки
- Размер: 6x8













