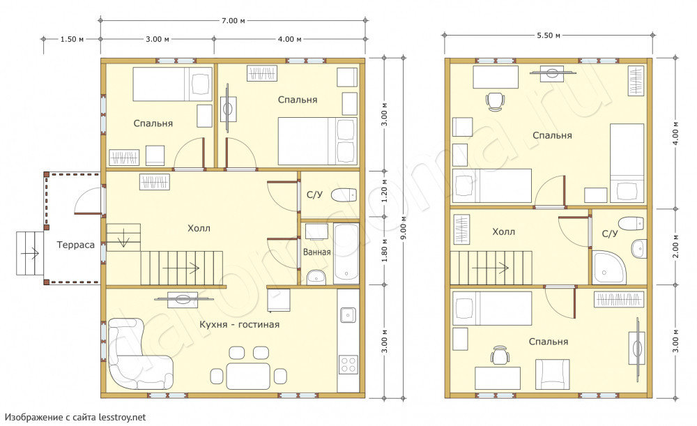
Проект двухэтажного дома Дом 7x9 м с ломаной крышей
Площадь
117 м 2
Размер дома:
7x9
Этажей:
2
Спален:
3
Санузел:
0
Гараж:
Нет
Баня:
Нет
Терраса:
Нет
Панорамные окна:
Нет
Мастер-спальня:
Нет
О проекте
Пространство, где можно чувствовать себя защищённым.Комфортные 117 м² — и ни больше, ни меньше. Стены из Брус хорошо держат тепло и защищают от шума. Двухэтажная современная планировка организует пространство максимально эффективно. Наличие 3 спальни удовлетворит запросы семьи с детьми.Характеристики
- Общая площадь: 117 м2
- Количество этажей: 2
- Стиль, разновидность: Дома в стиле Русский
- Форма: Прямоугольные дома
- Тип кровли: Дома с мансардной крышей
- Отделка: Без отделки
- Размер: 7x9
Отправьте свои контакты и мы расчитаем вам смету
Скорее всего вам подойдут следующие проекты домов:
Дом подходит для:
Проект двухэтажного дома ПРОЕКТ ДОМА ИЗ ПРОФ.БРУСА 11,1 НА 10,9
Семья с двумя детьми
Дом подходит для:
Дом подходит для:
Дом подходит для:













