Проект одноэтажного дома Дом-баня Плутон
Площадь
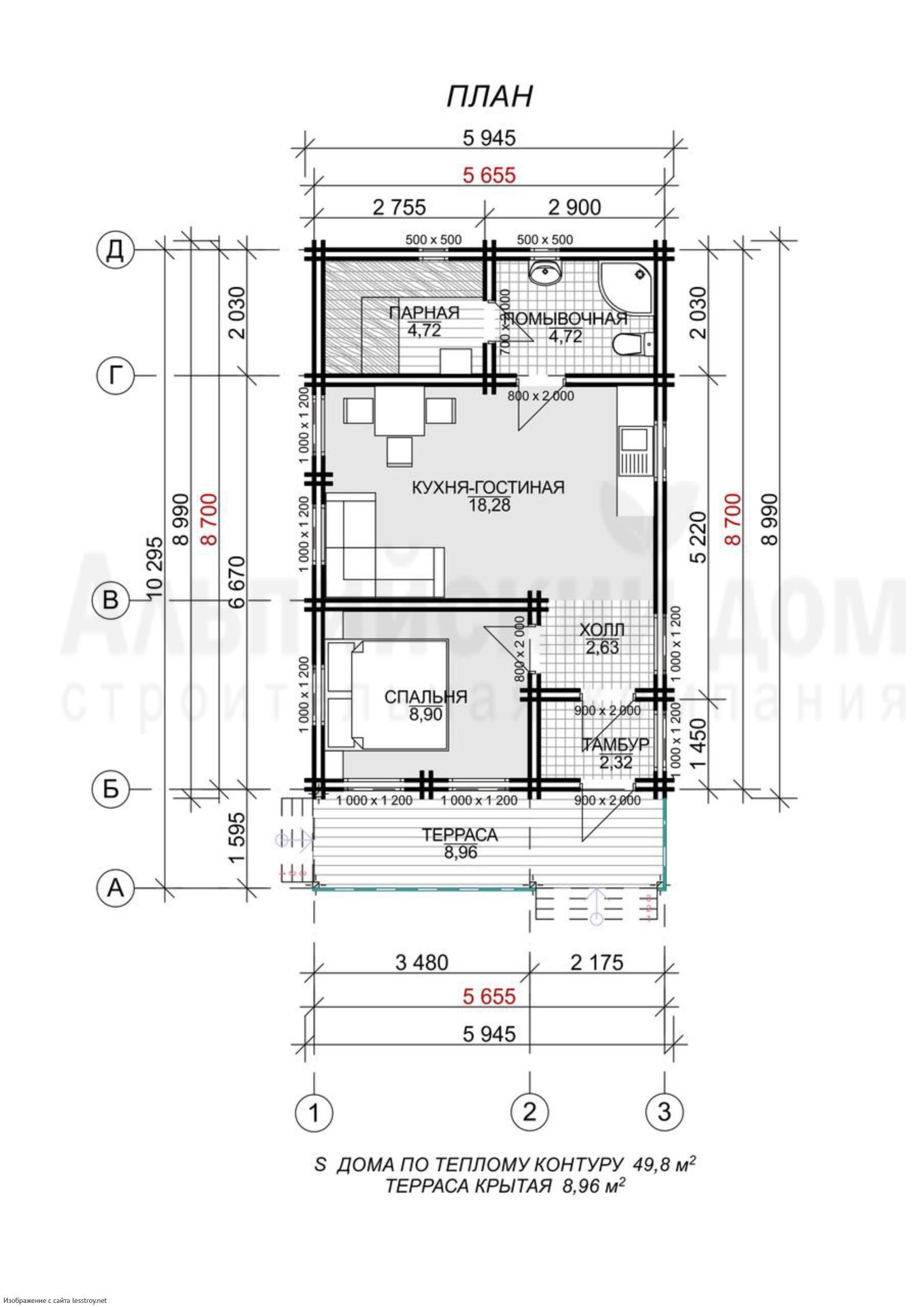
61 м 2
Размер дома:
6x10
Этажей:
1
Спален:
1
Санузел:
0
Гараж:
Нет
Баня:
Нет
Терраса:
Нет
Панорамные окна:
Нет
Мастер-спальня:
Нет
О проекте
Миниатюрный дом из двойного бруса площадью 61 м² с одной спальней идеален для отдыха. Металлочерепица и финский стиль делают его уютным.Характеристики
- Общая площадь: 61 м2
- Количество этажей: 1
- Стиль, разновидность: Финские дома
- Форма: Прямоугольные дома
- Тип кровли: Дома с двускатной крышей
- Отделка: Без отделки
- Размер: 6x10
Отправьте свои контакты и мы расчитаем вам смету
Скорее всего вам подойдут следующие проекты домов:
Дом подходит для:
Дом подходит для:
Дом подходит для:











