Проект одноэтажного дома ДОМ ДМ-02
Площадь
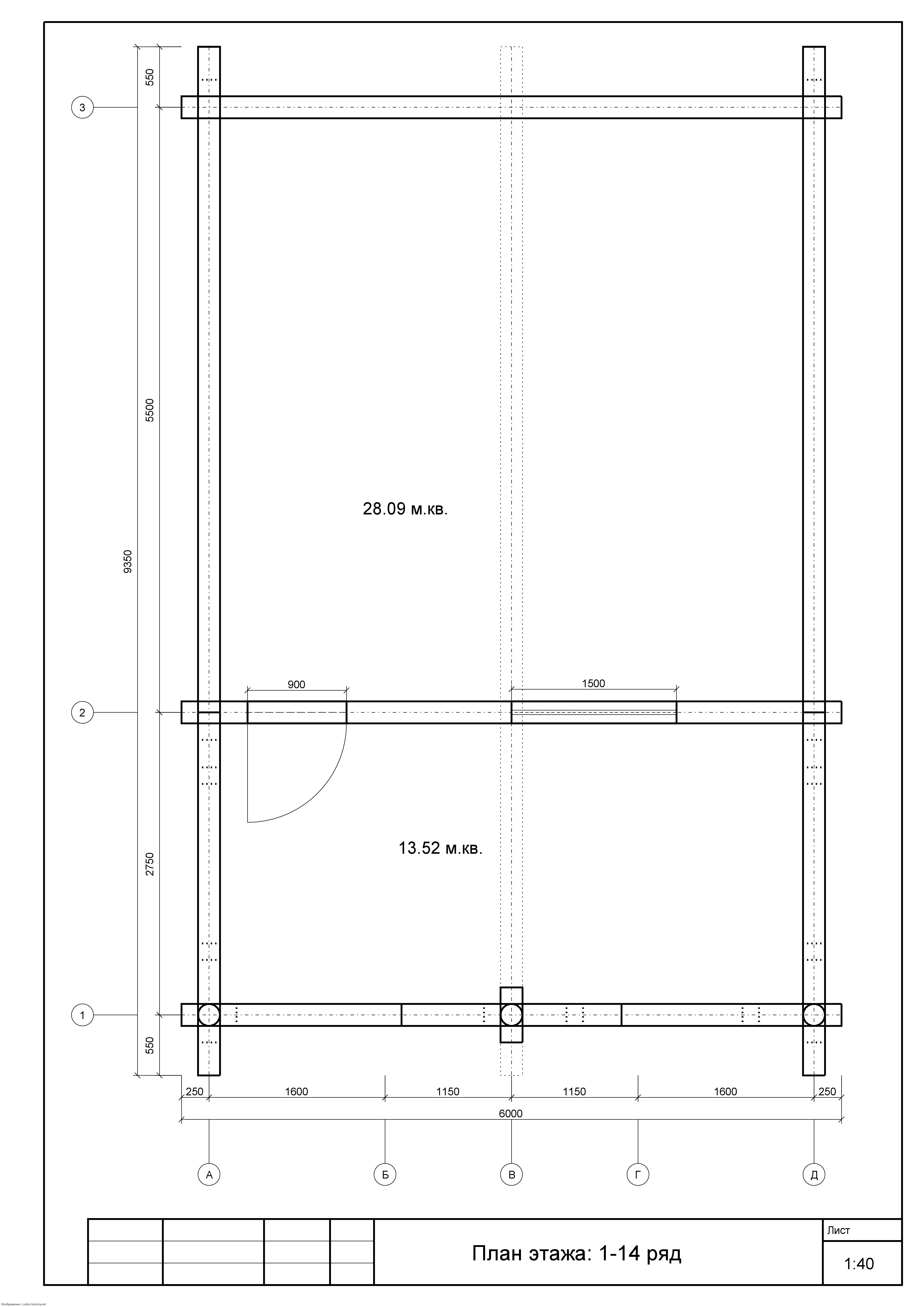
41 м 2
Размер дома:
Этажей:
1
Спален:
1
Санузел:
0
Гараж:
Нет
Баня:
Нет
Терраса:
Нет
Панорамные окна:
Нет
Мастер-спальня:
Нет
О проекте
Простор и уют в миниатюре: этот дом из оцилиндрованного бревна площадью 41 кв.м словно создан для уединения и душевного покоя. Компактная планировка позволяет реализовать все минимально необходимые бытовые функции на маленькой площади. Тёплое дерево наполняет дом легким ароматом и ощущением защищённости. Это идеальный вариант для дачного отдыха или творческой резиденции. Такой дом легко станет тёплой точкой притяжения среди зелёного окруженияХарактеристики
- Общая площадь: 41 м2
- Количество этажей: 1
- Стиль, разновидность: Дома в стиле Русский
- Форма: Прямоугольные дома
- Тип кровли: Дома с двускатной крышей
- Отделка: Без отделки



