Проект одноэтажного дома Дом Дублин
Площадь
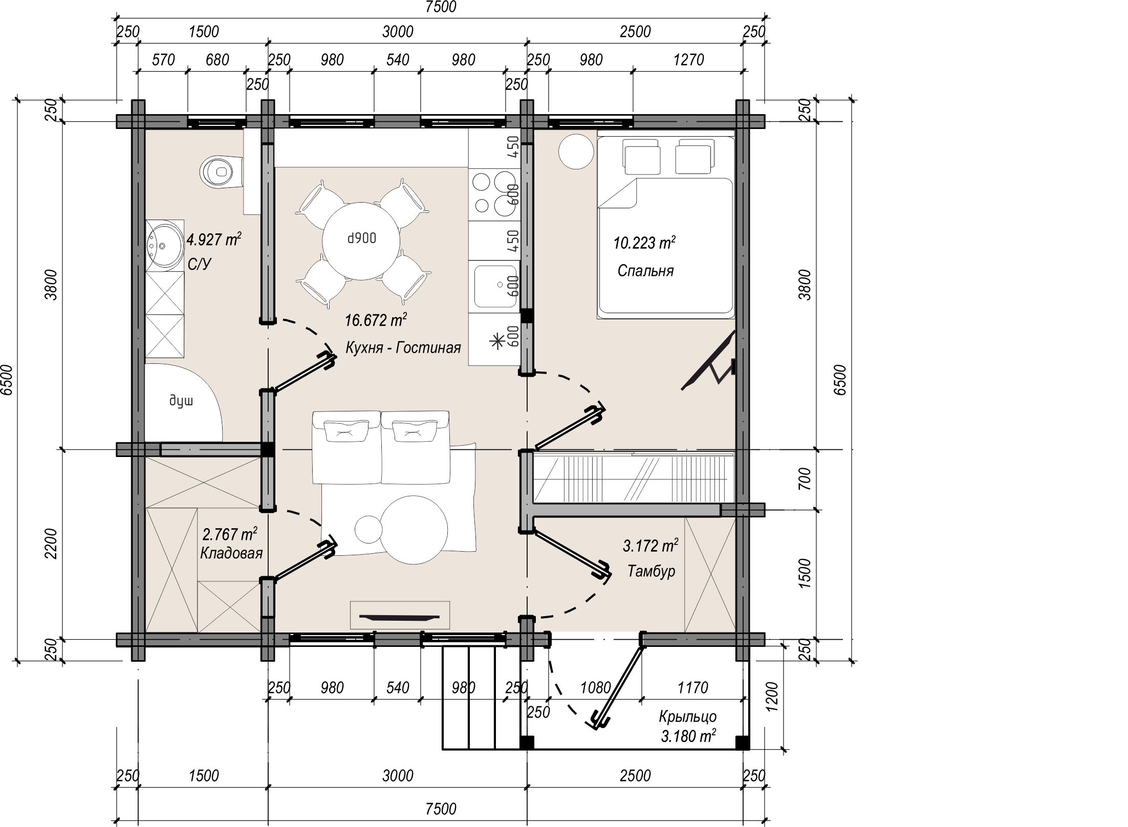
48 м 2
Размер дома:
Этажей:
1
Спален:
1
Санузел:
0
Гараж:
Нет
Баня:
Нет
Терраса:
Нет
Панорамные окна:
Нет
Мастер-спальня:
Нет
О проекте
Минималистичный дом из клееного бруса площадью 48 м² с одной спальней идеален для уединения. Черепичная кровля делает его стильным.Характеристики
- Общая площадь: 48 м2
- Количество этажей: 1
- Стиль, разновидность: Дома в стиле Минимализм
- Форма: Прямоугольные дома
- Тип кровли: Дома с двускатной крышей
- Отделка: Без отделки
Отправьте свои контакты и мы расчитаем вам смету
Скорее всего вам подойдут следующие проекты домов:
Дом подходит для:
Дом подходит для:
Дом подходит для:













