Проект двухэтажного дома ДОМ Финский 320 кв.м.
Площадь
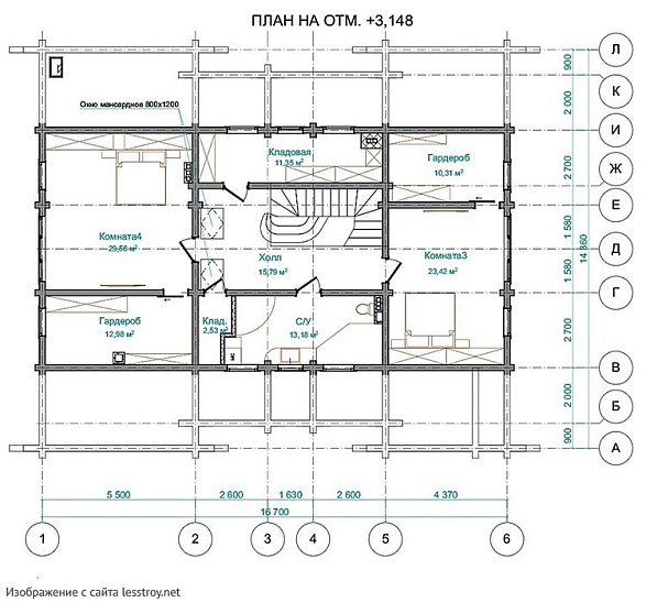
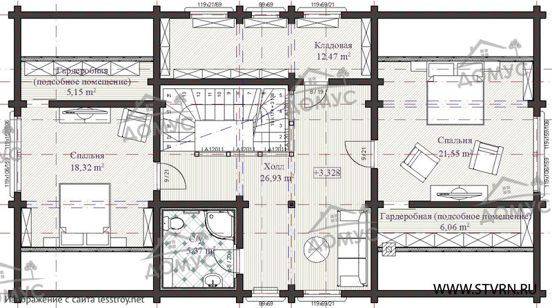
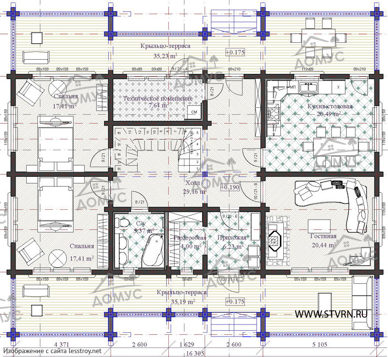
320 м 2
Размер дома:
15x15
Этажей:
2
Спален:
4
Санузел:
0
Гараж:
Нет
Баня:
Нет
Терраса:
Нет
Панорамные окна:
Нет
Мастер-спальня:
Нет
О проекте
Этот дом — пример того, как можно совместить изящество и рациональность.Большой дом из бруса площадью 320 м² — роскошный вариант для просторного проживания. Натуральные материалы и качественная отделка подчеркивают статус. Просторные комнаты и зоны отдыха создают комфорт. Участок идеален для создания сада или бассейна.Характеристики
- Общая площадь: 320 м2
- Количество этажей: 2
- Стиль, разновидность: Финские дома
- Форма: Прямоугольные дома
- Тип кровли: Дома с многощипцовой крышей
- Отделка: Без отделки
- Размер: 15x15
Отправьте свои контакты и мы расчитаем вам смету
Скорее всего вам подойдут следующие проекты домов:
Проект двухэтажного дома Проект 1668 - дом из клееного бруса с большой гостиной и 4 спальнями
Для большой семьи
Дом подходит для:
Дом подходит для:
Дом подходит для:
Проект двухэтажного дома КОНАКОВО 350
Для большой семьи
Дом подходит для:
Дом подходит для:











