Проект одноэтажного дома Дом Фламинго
Площадь
300 м 2
Размер дома:
Этажей:
1
Спален:
3
Санузел:
0
Гараж:
Нет
Баня:
Нет
Терраса:
Нет
Панорамные окна:
Нет
Мастер-спальня:
Нет
О проекте
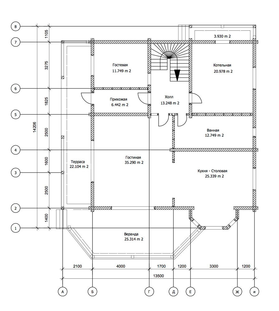
Мы продумали все детали для вашего комфортного проживания.108 м² жилой зоны подойдут как для семьи, так и для пары. В качестве кровли использована рубероид — материал, проверенный временем. Количество спален — 3, делая планировку гибкой. Дом спроектирован в духе дома в классическом стиле.Характеристики
- Общая площадь: 300 м2
- Количество этажей: 1
- Стиль, разновидность: Финские дома
- Форма: Прямоугольные дома
- Тип кровли: Дома с двускатной крышей
- Отделка: Без отделки
Отправьте свои контакты и мы расчитаем вам смету
Скорее всего вам подойдут следующие проекты домов:
Дом подходит для:
Дом подходит для:
Дом подходит для:






