Проект двухэтажного дома Дом id-112328
Дом подходит для:
Площадь
186 м 2
Размер дома:
10x9
Этажей:
2
Спален:
4
Санузел:
2
Гараж:
Нет
Баня:
Нет
Терраса:
Нет
Панорамные окна:
Нет
Мастер-спальня:
Нет
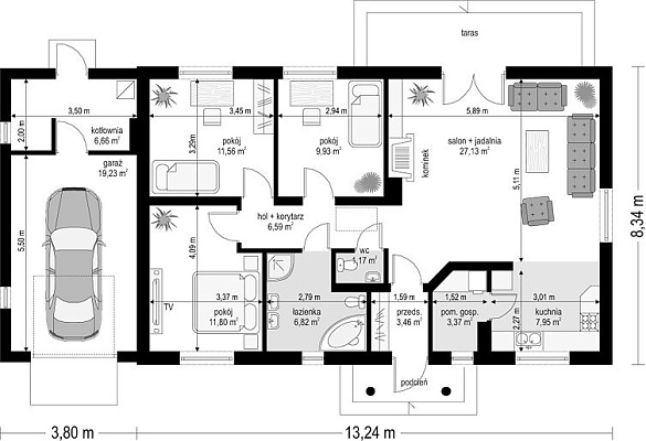
Планировка
Характеристики
- Общая площадь: 186 м2
- Жилая площадь: 99 м2
- Количество этажей: 2
- Гараж: Без гаража
- Площадь кровли: 147 м2
- Размер: 10x9
- Фундамент: Дома с ленточным фундаментом
Отправьте свои контакты и мы расчитаем вам смету
Скорее всего вам подойдут следующие проекты домов:
Проект двухэтажного дома Дом id-112373
Для большой семьи
Дом подходит для:
Дом подходит для:
Проект двухэтажного дома Дом id-110014
Семья с двумя детьми
Дом подходит для:
Дом подходит для:
Проект двухэтажного дома Дом id-110893
Семья с двумя детьми
Дом подходит для:
Дом подходит для:
























