Проект одноэтажного дома Дом id-112368
Дом подходит для:
Площадь
125 м 2
Размер дома:
15x8
Этажей:
1
Спален:
2
Санузел:
1
Гараж:
Нет
Баня:
Нет
Терраса:
Нет
Панорамные окна:
Нет
Мастер-спальня:
Нет
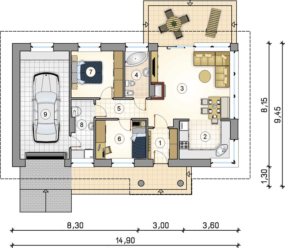
Планировка
Характеристики
- Общая площадь: 125 м2
- Жилая площадь: 69 м2
- Количество этажей: 1
- Гараж: На 1 машину
- Площадь кровли: 182,50 м2
- Размер: 15x8
- Фундамент: Дома с ленточным фундаментом
Отправьте свои контакты и мы расчитаем вам смету
Скорее всего вам подойдут следующие проекты домов:
Проект одноэтажного дома Дом id-115224
Семья с одним ребенком
Дом подходит для:
Дом подходит для:
Проект одноэтажного дома Дом id-115261
Семья с двумя детьми
Дом подходит для:
Дом подходит для:
Проект одноэтажного дома Дом id-120579
Семья с двумя детьми
Дом подходит для:
Дом подходит для:






















