Проект одноэтажного дома Дом id-113202
Дом подходит для:
Площадь
255 м 2
Размер дома:
11x23
Этажей:
1
Спален:
4
Санузел:
3
Гараж:
Нет
Баня:
Нет
Терраса:
Нет
Панорамные окна:
Нет
Мастер-спальня:
Нет
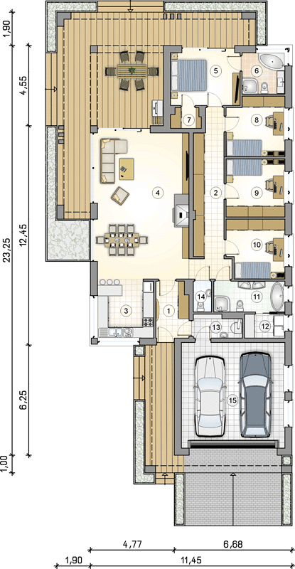
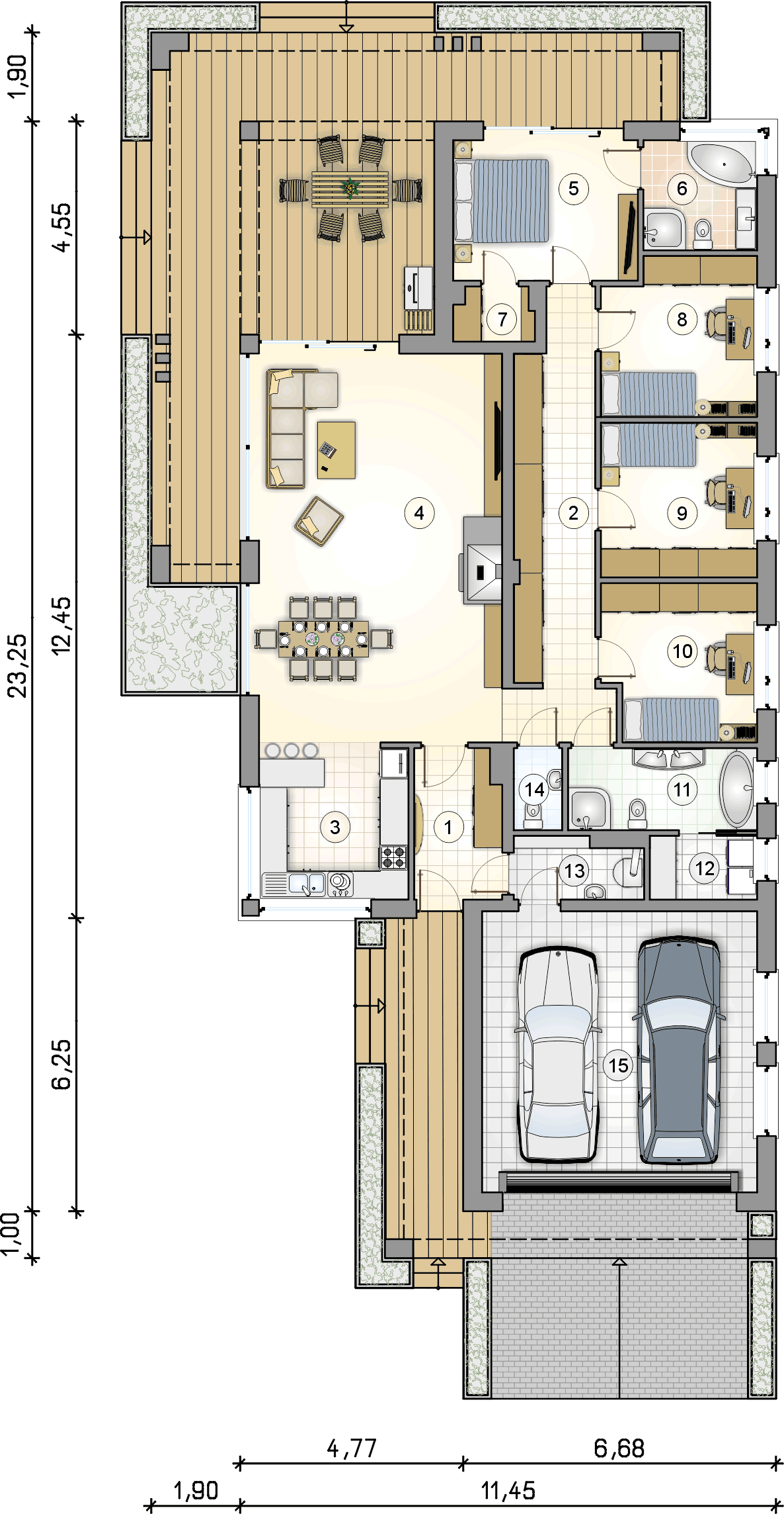
Планировка
Характеристики
- Общая площадь: 255 м2
- Жилая площадь: 141 м2
- Количество этажей: 1
- Гараж: На 2 машины
- Площадь кровли: 261 м2
- Размер: 11x23
- Фундамент: Дома с ленточным фундаментом
Отправьте свои контакты и мы расчитаем вам смету
Скорее всего вам подойдут следующие проекты домов:
Проект одноэтажного дома Дом id-116839
Для большой семьи
Дом подходит для:
Дом подходит для:
Проект одноэтажного дома Дом id-116744
Семья с двумя детьми
Дом подходит для:
Дом подходит для:
Проект одноэтажного дома Дом id-119409
Для большой семьи
Дом подходит для:
Дом подходит для:
























