Проект двухэтажного дома Дом id-114314
Дом подходит для:
Площадь
119 м 2
Размер дома:
15x10
Этажей:
2
Спален:
3
Санузел:
2
Гараж:
Нет
Баня:
Нет
Терраса:
Нет
Панорамные окна:
Нет
Мастер-спальня:
Нет
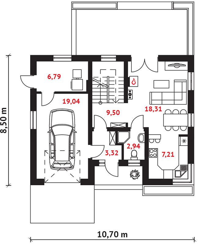
Планировка
Характеристики
- Общая площадь: 119 м2
- Жилая площадь: 93 м2
- Количество этажей: 2
- Гараж: На 1 машину
- Размер: 15x10
- Фундамент: Дома с ленточным фундаментом
Отправьте свои контакты и мы расчитаем вам смету
Скорее всего вам подойдут следующие проекты домов:
Проект двухэтажного дома Дом id-114349
Для большой семьи
Дом подходит для:
Дом подходит для:
Проект двухэтажного дома Дом id-54431
Для большой семьи
Дом подходит для:
Дом подходит для:
Проект двухэтажного дома Дом id-78688
Для большой семьи
Дом подходит для:
Дом подходит для:



















